
Espace de coworking à Baraqueville (12)
Le projet consiste en la création d’un espace Coworking dans les anciens ateliers municipaux de la ville de Baraqueville.
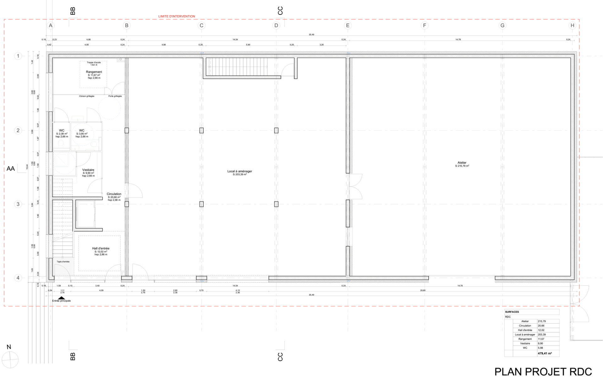
Description
Le projet consiste en la réhabilitation des anciens ateliers municipaux en espace de coworking. La façade sera ré-isolée et bardée de métal et bois. Une terrasse complètera le programme au 1er étage avec une vue sur le lac.
Cet espace rassemblera plusieurs activités et permettra la rencontre dans le cadre du travail, mais également hors temps de travail.
Organisé sur 2 étages, les usagers pourront y retrouver :
- Un espace de coworking
- Un espace emploi formation
- Un espace information
- Une cuisine partagée
- Des salles de réunion
Architecte :
Hugues Tournier - Mission :
mission complète - Surface :
340 m²











