
Restaurant à Lacalm (12)
Dans le village de Lacalm, une bâtisse caractéristique du Nord Aveyron sera réhabilitée en alliant tradition et modernité, afin de recréer un pôle attractif.
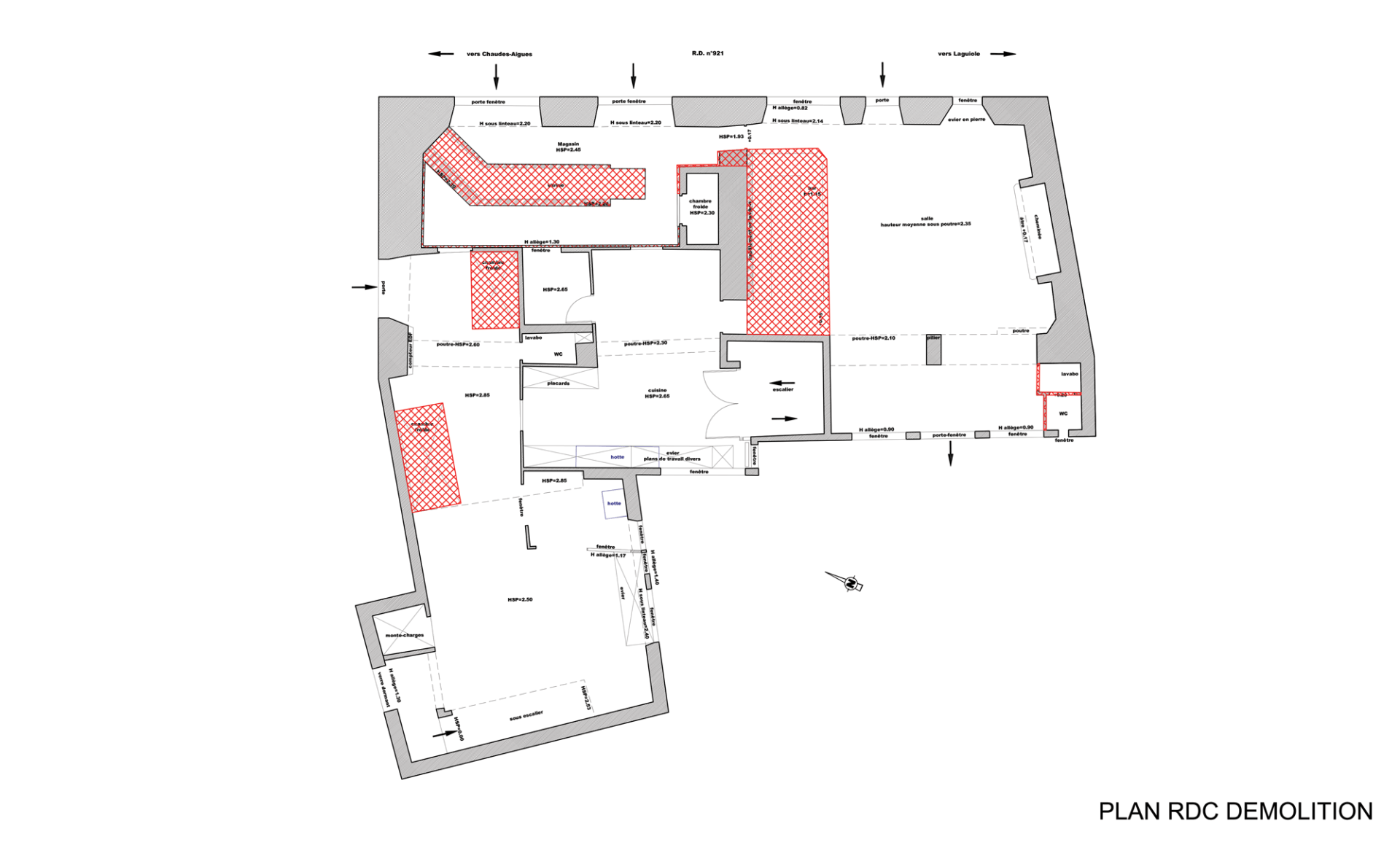
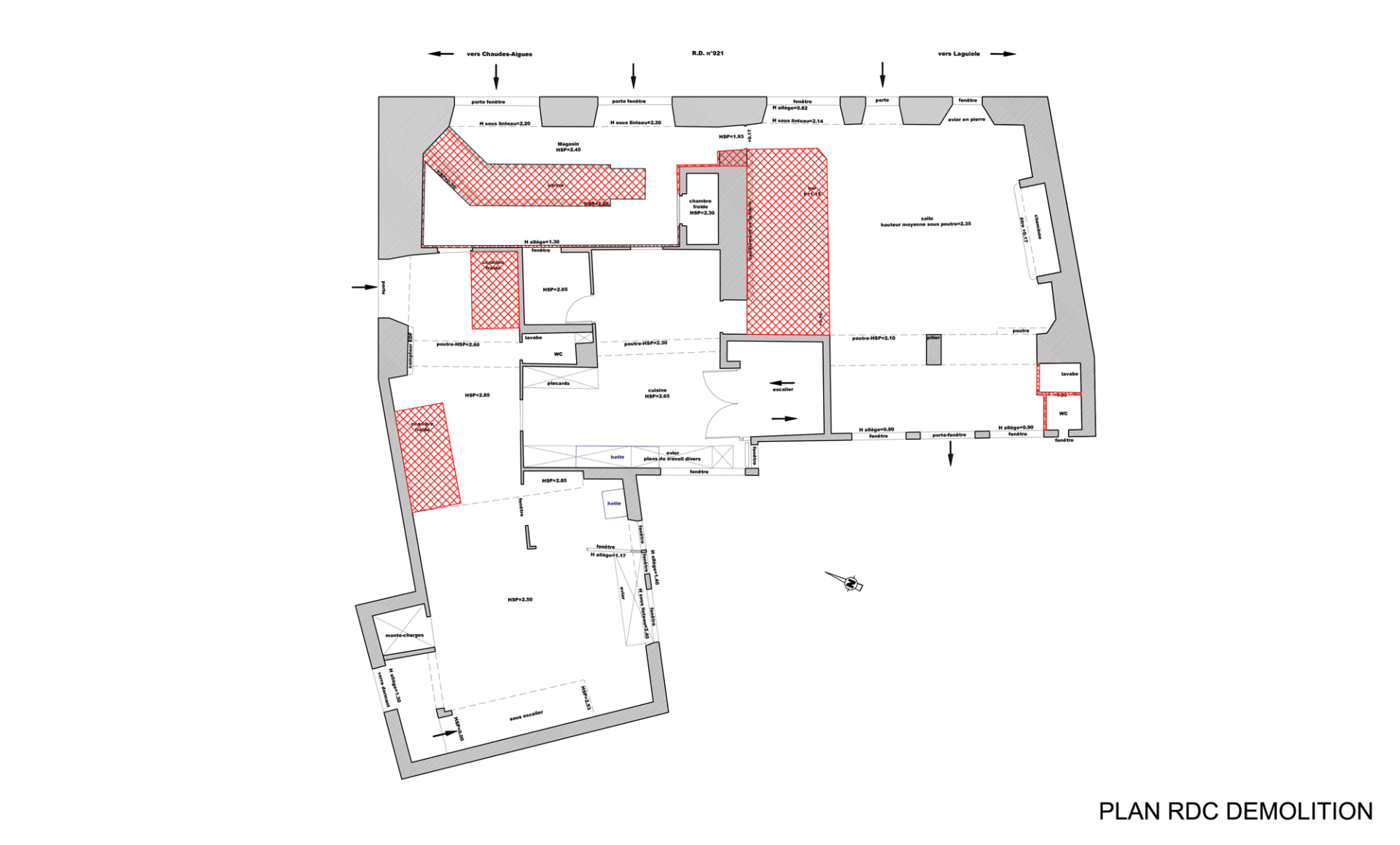
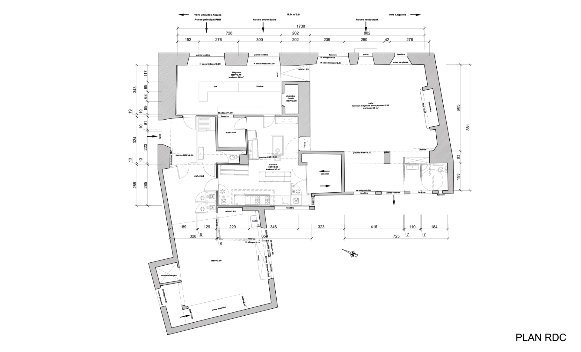
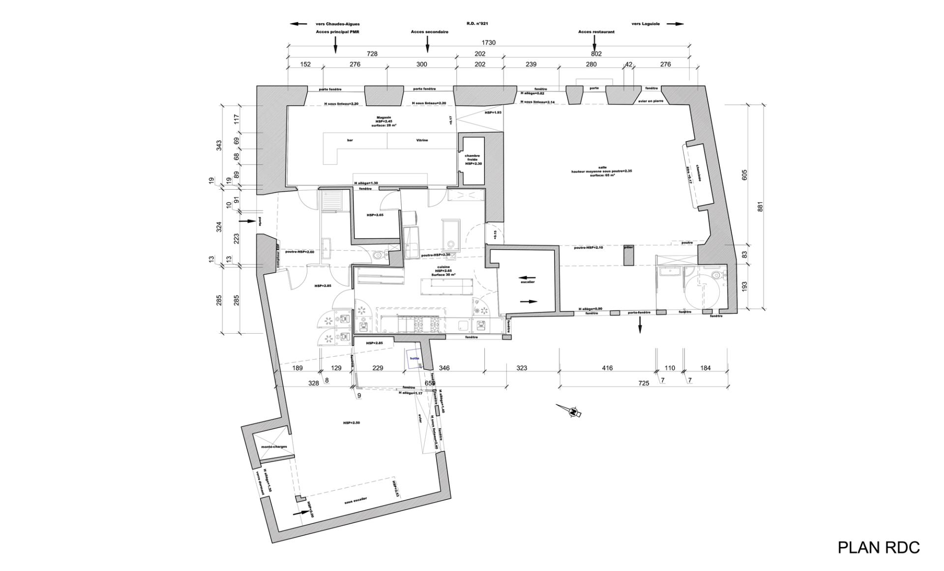
Description
Le « Cantou » sera préservé et valorisé, le bois sera un matériau omniprésent. Les connexions visuelles entre le restaurant, le bar et la terrasse en structure bois par un accès vitré donneront une impression d’espace. Les pièces annexes telles que la cuisine professionnelle, les locaux techniques, chambres froides ainsi que l’atelier seront reliées entre elles par des accès facilités et rénovés selon les normes d’hygiène en vigueur. De plus, l’atelier aura une fonction de point d’attraction au cœur du village lors de rassemblements festifs.
Au 1er étage, surplombant l’atelier, un appartement de type 3, lumineux et aux grands volumes, pour le futur exploitant.
La façade actuellement en pierre granitique caractéristique sera éclaircie par des joints blanchis et une double façade en structure bois.
Architecte :
Hugues Tournier - Mission :
étude de faisabilité - Surface :
385 m²












