
Maison individuelle à Valady (12)
Le projet consiste en la réhabilitation d’une grange en maison d’habitation sur la commune de Valady.
Description
Cette grange traditionnelle en pierre et toit deux pentes en lauze sera réhabilitée et modernisée en maison d’habitation sur deux étages.
Le projet comprend la création d’une terrasse en bois, couverte avec une partie extérieure sur pilotis et garde-corps métal de teinte sombre au Sud-Ouest, donnant ainsi un accès direct de la salle à manger à la terrasse.
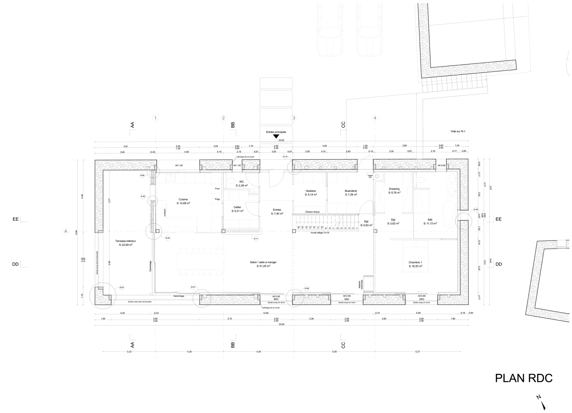
La partie habitation, basée sur un plan rectangulaire, sera compacte afin optimiser les surfaces et la performance énergétique.
Le volume bas accueille un garage, une chaufferie et une cave.
Le volume rez-de-chaussée accueille l’entrée, la buanderie, un wc, les pièces de jour, la chambre parentale avec salle de bain et dressing.
Le volume R+1 accueille trois chambres, une salle de bain, un wc et un bureau en mezzanine.
Architecte : Hugues Tournier - Mission : mission permis de construire - Surface : 254 m²


















