
Maison individuelle à Salles-la-Source (12)
La réhabilitation de la maison permettra de fluidifier l’espace et de profiter de nombreux apports de lumière.
Description
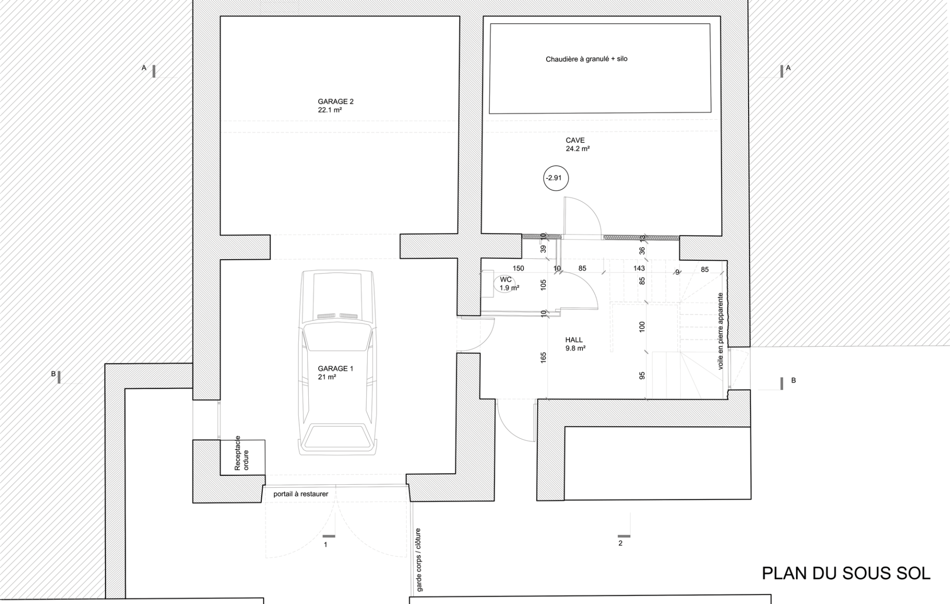
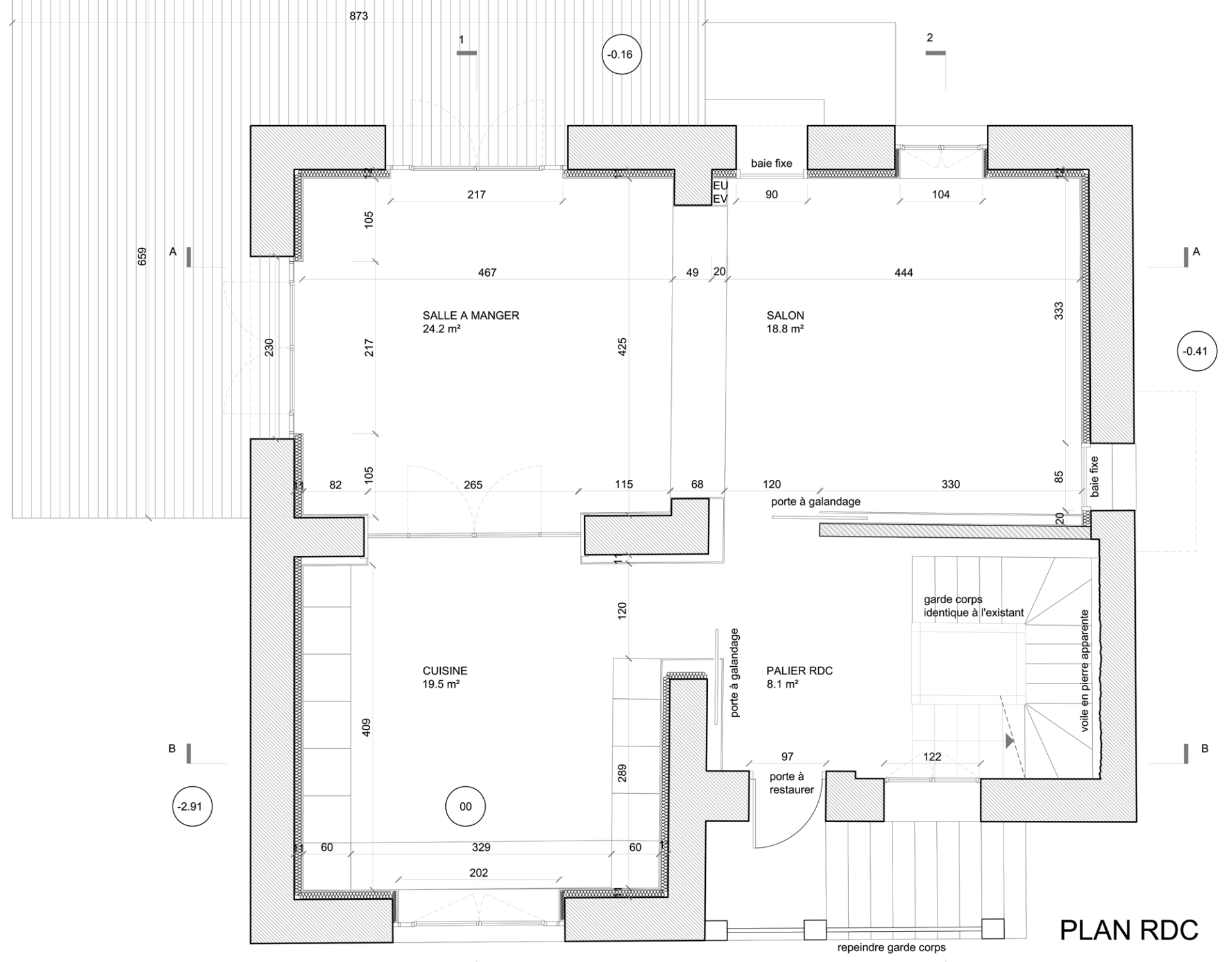
La réhabilitation comprend les ouvertures et cadrages sur le jardin et le paysage, les ouvertures dans les murs porteurs, l’isolation des murs et toiture, le remplacement de l’ensemble des menuiseries extérieures, la mise en place d’un système de chauffage, le remplacement des systèmes électrique plomberie sanitaire, l’agencement d’une nouvelle cuisine, l’ensemble des finitions.
Au Nord de la bâtisse, les deux espaces en Est et Ouest seront largement ouverts pour profiter d’une dynamique traversante vers la lumière et vers les espaces extérieurs.
A l’étage, les deux grandes chambres seront rafraîchies. La salle de bain et le bureau seront recomposés. Sous les combles, les chambres seront rafraîchies et le grenier sera ouvert pour ajouter la fonction de mezzanine/bureau. Derrière la grande bibliothèque seront aménagés une salle de bain et un grand dressing. Les apports de lumière nécessaires seront amenés par trois velux.
Architecte : Hugues Tournier - Mission : mission complète - Surface : 278 m²















