
Rénovation et extension d'une maison individuelle à Salles-la-Source (12)
Rénovation de la construction existante et création d’une extension. Cohérence architecturale entre les bâtiments existants et les bâtiments à créer.
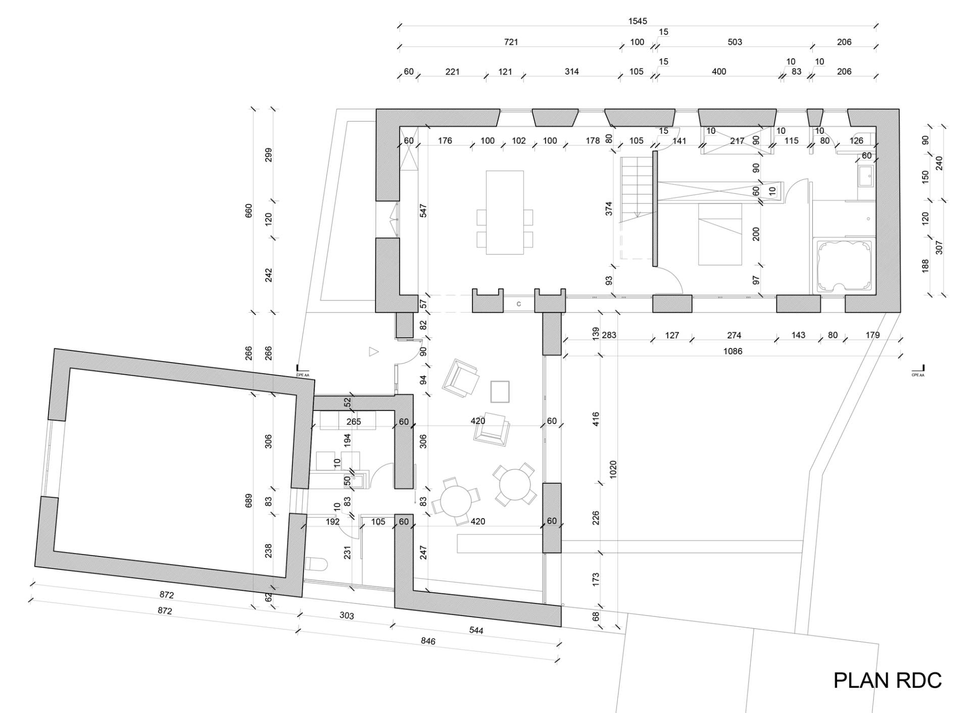
Description
Le bâti existant est parfaitement intégré au paysage du hameau. Au centre de la parcelle, se trouve la bâtisse construite en pierre de pays sur deux étages + combles dont l’entrée se fait aujourd’hui au Nord. La toiture est en lauze.
Le garage se trouve au Sud-Ouest de la parcelle.
L’extension restera en harmonie avec l’identité architecturale du hameau. L’écriture de la toiture originelle sera retrouvée pour une partie de l’extension, et une autre partie en toiture végétalisée et bardage acier Corten viendra marquer l’aspect contemporain tout en complétant l’ensemble composé de pierre et de lauze.
L’extension « traditionnelle » sera ouverte grâce à une baie vitrée donnant sur la terrasse, permettant de réaliser un ensemble harmonieux avec la bâtisse existante. L’extension «contemporaine » sera ouverte par l’intermédiaire de deux bandeaux horizontaux sous la toiture végétalisée. Le vitrage côté sud sera sablé pour éviter le vis-à-vis avec les voisins.
Architecte : Hugues Tournier - Mission : permis de construire - Surface : 256 m²











