
Maison individuelle à Sainte-Radegonde (12)
Réhabilitation d’une ancienne discothèque en maison d’habitation.Cette villa sera en béton, une partie ossature et charpente bois.
Description
Cette maison contemporaine à toit deux pentes, sur deux étages, répond à un dispositif d’orientation simple.
Les opacités permettent de se protéger des désagréments du Nord et les ouvertures permettent de profiter des apports solaires du Sud.
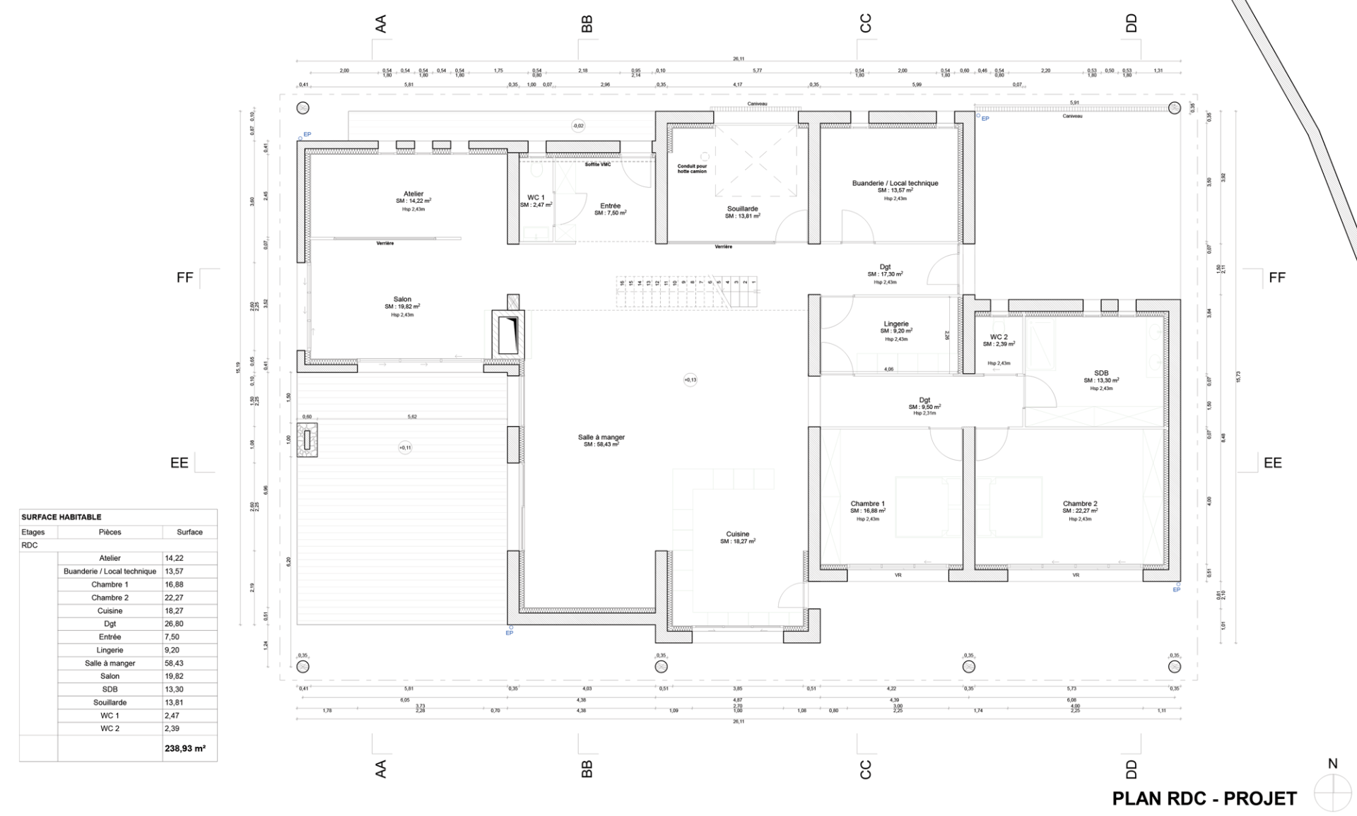
L’organisation de la maison se fait autour d’un grand volume salon, salle à manger et cuisine dans la partie centrale.
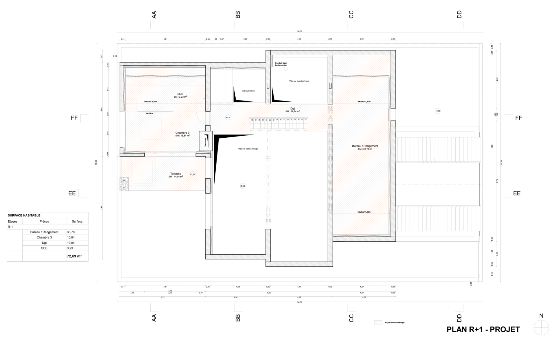
Le volume bas accueille l’entrée, le cellier et buanderie, les pièces de jour et une chambre parentale. Le volume haut accueille une chambre avec salle de bain et une pièce de rangement, le reste étant un grand vide sur le salon.
On retrouve une terrasse abritée façade Ouest. Les vitrages et ouvertures apportent la lumière et créent les liens entre l’intérieur et l’extérieur.
Le projet est ancré dans son époque sur une base architecturale moderne, caractérisée par ses volumes simples, ses larges ouvertures horizontales, ses plans libres et ses toitures deux pentes.
Architecte : Hugues Tournier - Mission : complète - Surface : 293 m²















