
Maison individuelle à Saint Just sur Viaur (12)
Le projet consiste à réhabiliter une grange en maison d'habitation, de façon minimaliste et intégrée dans le contexte environnant.
Description
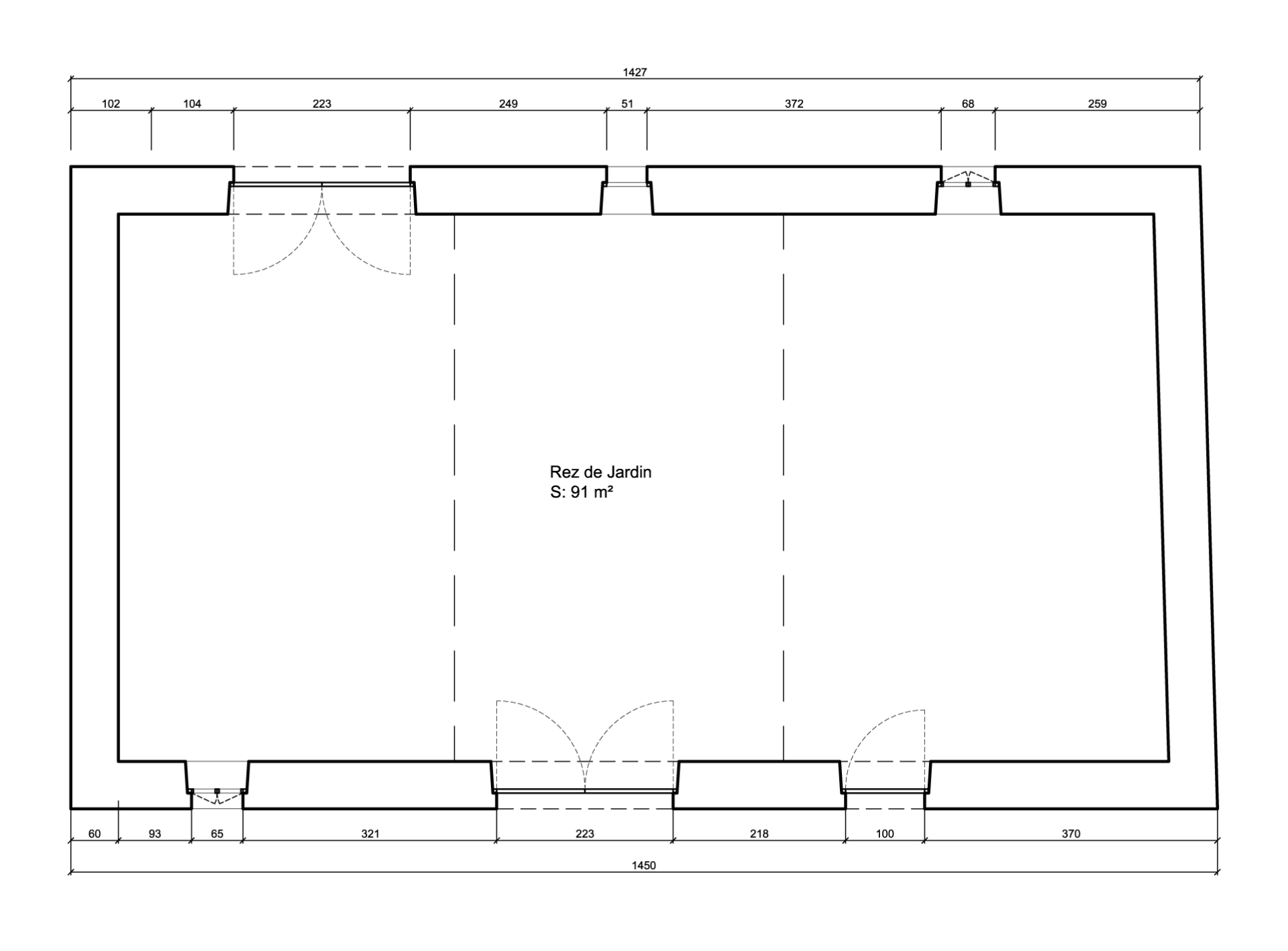
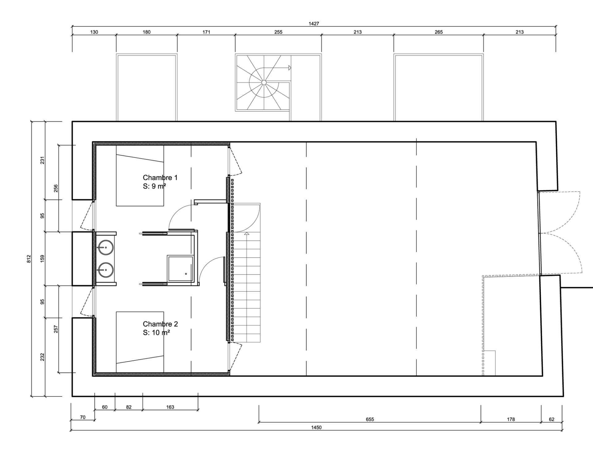
La réhabilitation comprend les ouvertures et cadrages sur le paysage, l’ajout de terrasse sur le jardin, un accès du rez-de-chaussée vers le rez-de-jardin, un bloc isolé comprenant au rez-de-chaussée : une cuisine, une buanderie et un WC, un bloc isolé comprenant à l’étage deux chambres et une salle de bain, une bloc isolé sera bardé de bois a claire voie.
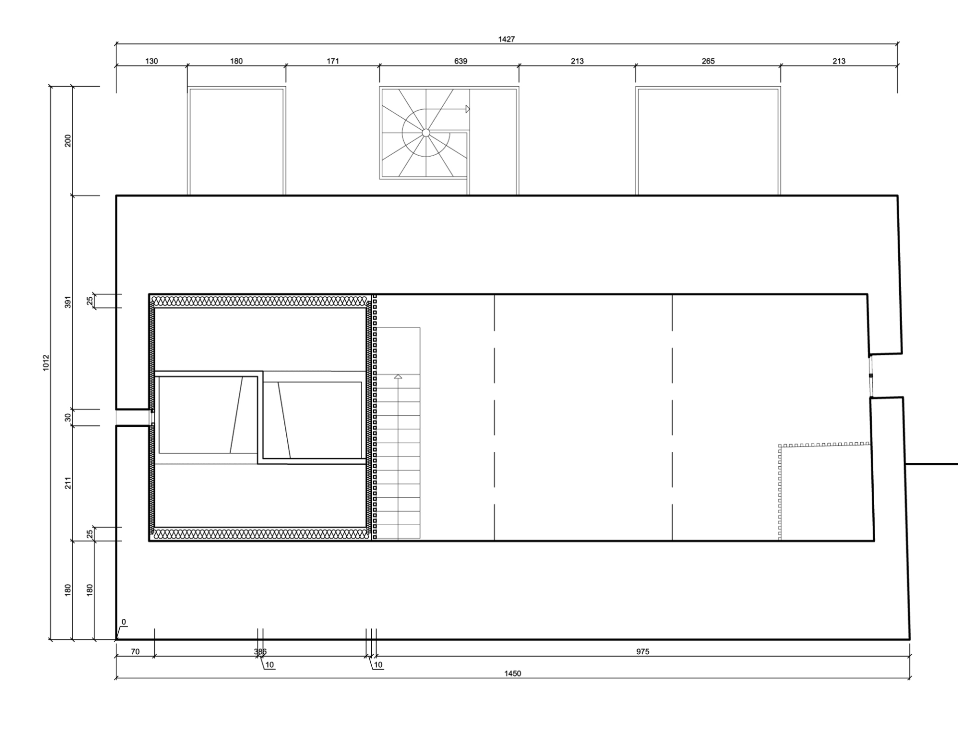
L’escalier du rez-de-chaussée vers le R+1 est hors du volume isolé qui s’organise sur deux niveaux et demi. Le demi-niveau appelé R+2 correspond à l’optimisation de l’espace sous la poutre faitière, au dessus de la salle de bain. Cette mezzanine peut accueillir un lit pour chaque chambre accessible avec une échelle. Lépaisseur bloc isolé est plus courte d’environ 1 mètre.
La façade créée sur la salle de réception est un bardage bois a claire voie, fixé sur du cloisonnement traditionnel isolé. Des fenêtres verticales permettront de composer les deux matériaux principaux (le bois et la pierre).
Architecte : Hugues Tournier - Mission : étude de faisabilité - Surface : 90 m²








