
Maison individuelle à Rodelle (12)
Le projet consiste en la rénovation et extension d’une grange existantepour en faire une maison individuelle valorisant le patrimoine bâti.
Description
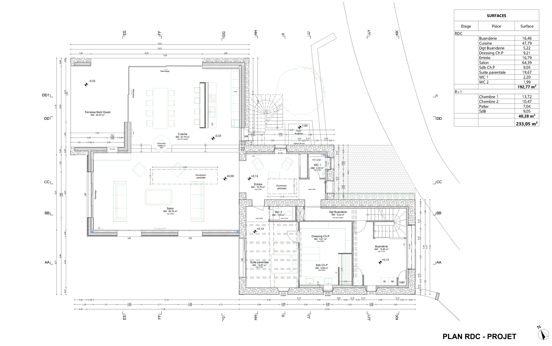
Cette grange traditionnelle de caractère, de 149 m² sur deux niveaux, sera rénovée et une extension de plain-pied de 84 m² sera créée.
L’entrée se fera côté Est, dans le bâti existant. Elle comprendra le hall d’entrée et des sanitaires, et donnera l’accès à la suite parentale avec sanitaires, dressing et salle de bain, ainsi qu’un autre accès à la buanderie et à l’escalier menant au R+1.
Elle donne également sur la nouvelle extension côté Ouest, abritant le salon / salle à manger avec une hauteur sous plafond de 5 m, la cave à vin et la cuisine, avec sa terrasse attenante de 25 m² abritée.
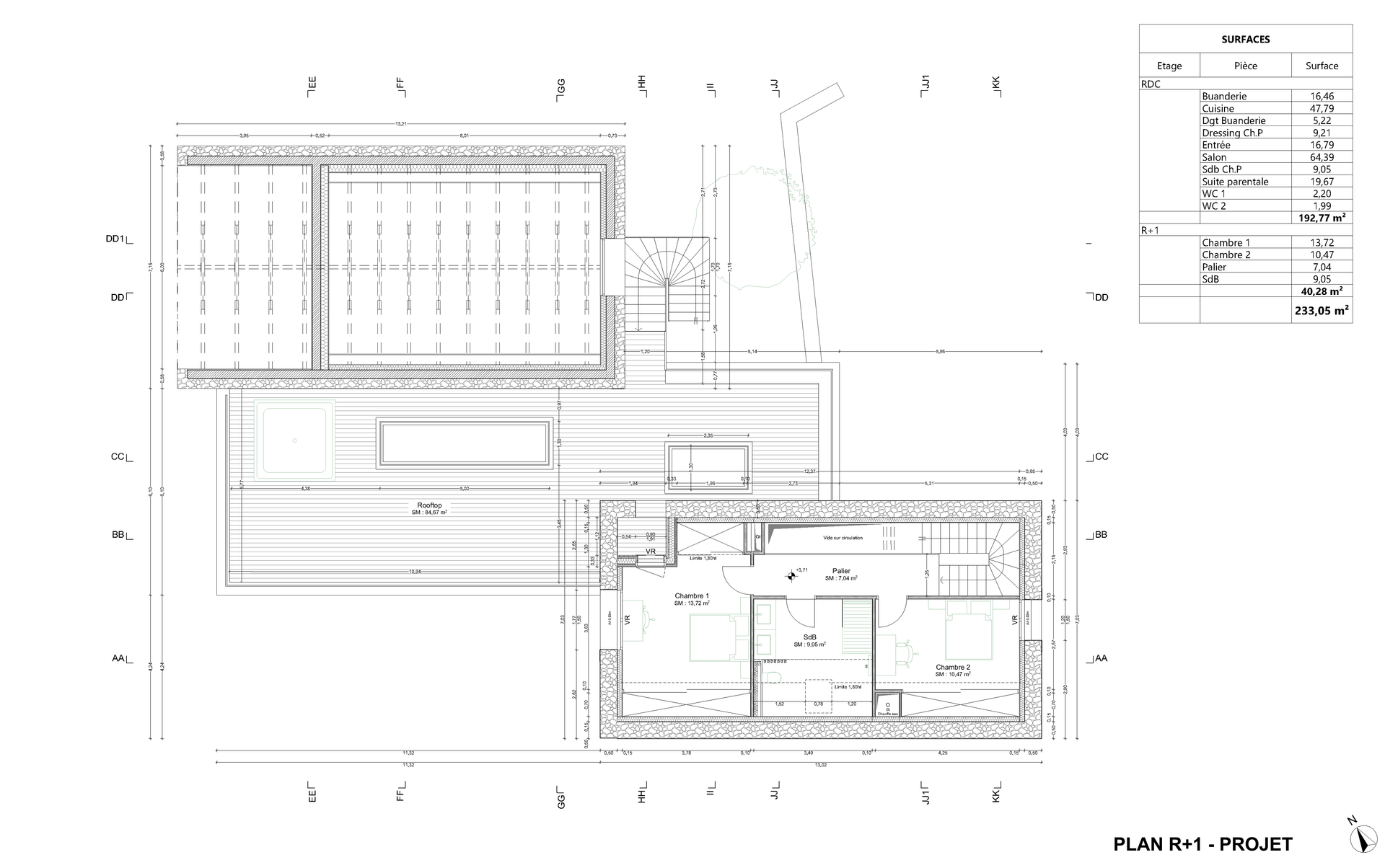
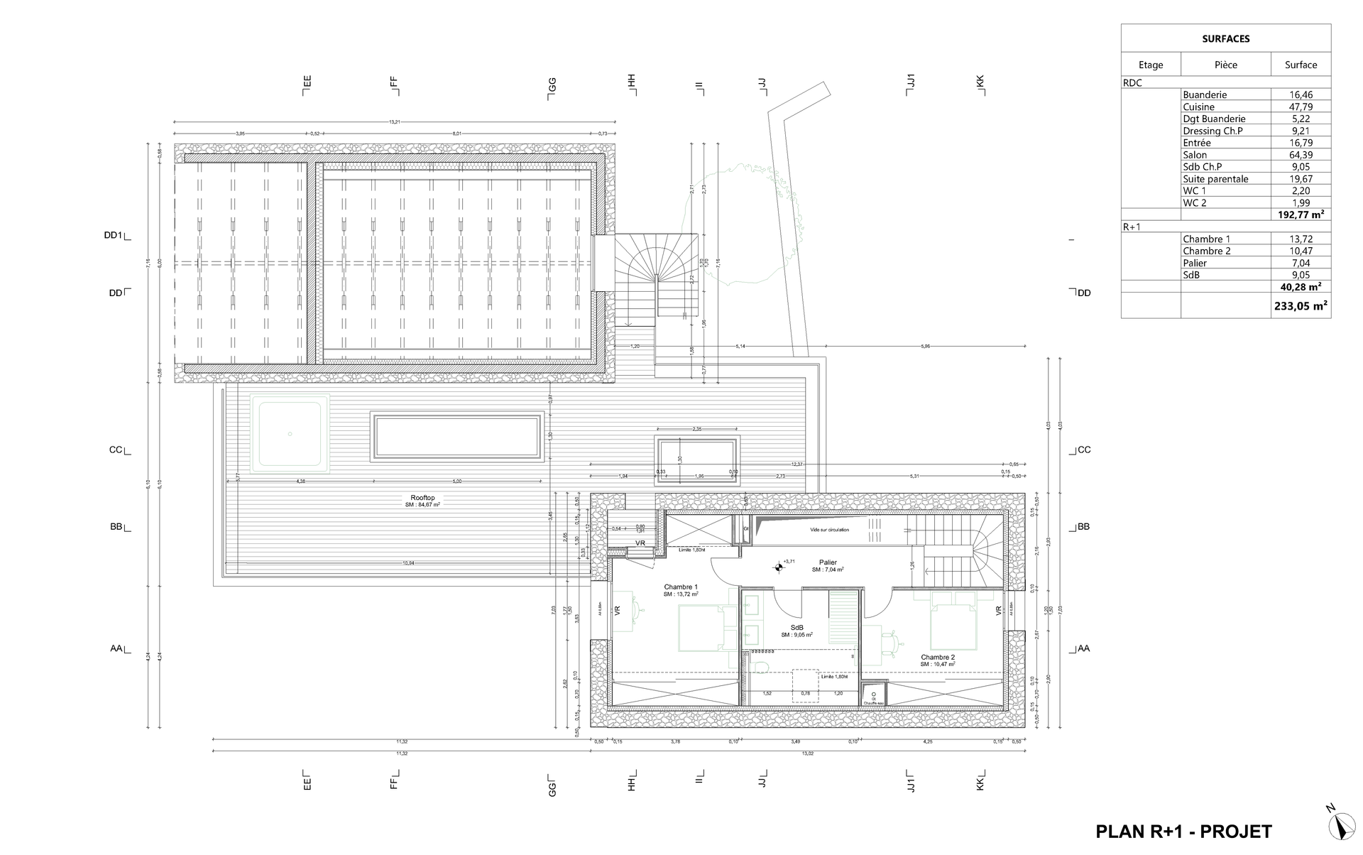
Au R+1, deux chambres, une salle de bain et des sanitaires seront créés dans le bâtiment existant. Le rooftop trouvera sa place au-dessus de la cuisine et de l’entrée. Il permettra la création de deux puits de lumière rectangulaires sur l’entrée le salon et offrira un espace bien-être avec son jacuzzi. L’accès pourra se faire grâce à un escalier extérieur au Nord-Est, ou par l’intérieur par une chambre du R+1.
De grandes ouvertures seront créées en façade afin de profiter au maximum de la lumière.
Architecte : Hugues Tournier - Mission : mission complète - Surface : 233 m²

















