
Réhabilitation d'une maison individuelle à Rignac (12)
Le terrain comprend plusieurs bâtiments existantset le projet concerne la réhabilitation de l’un d’entre eux.
Description
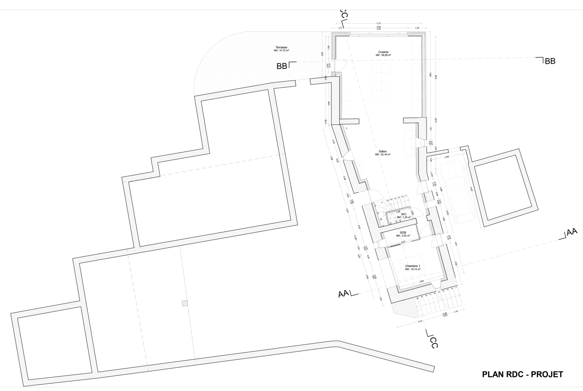
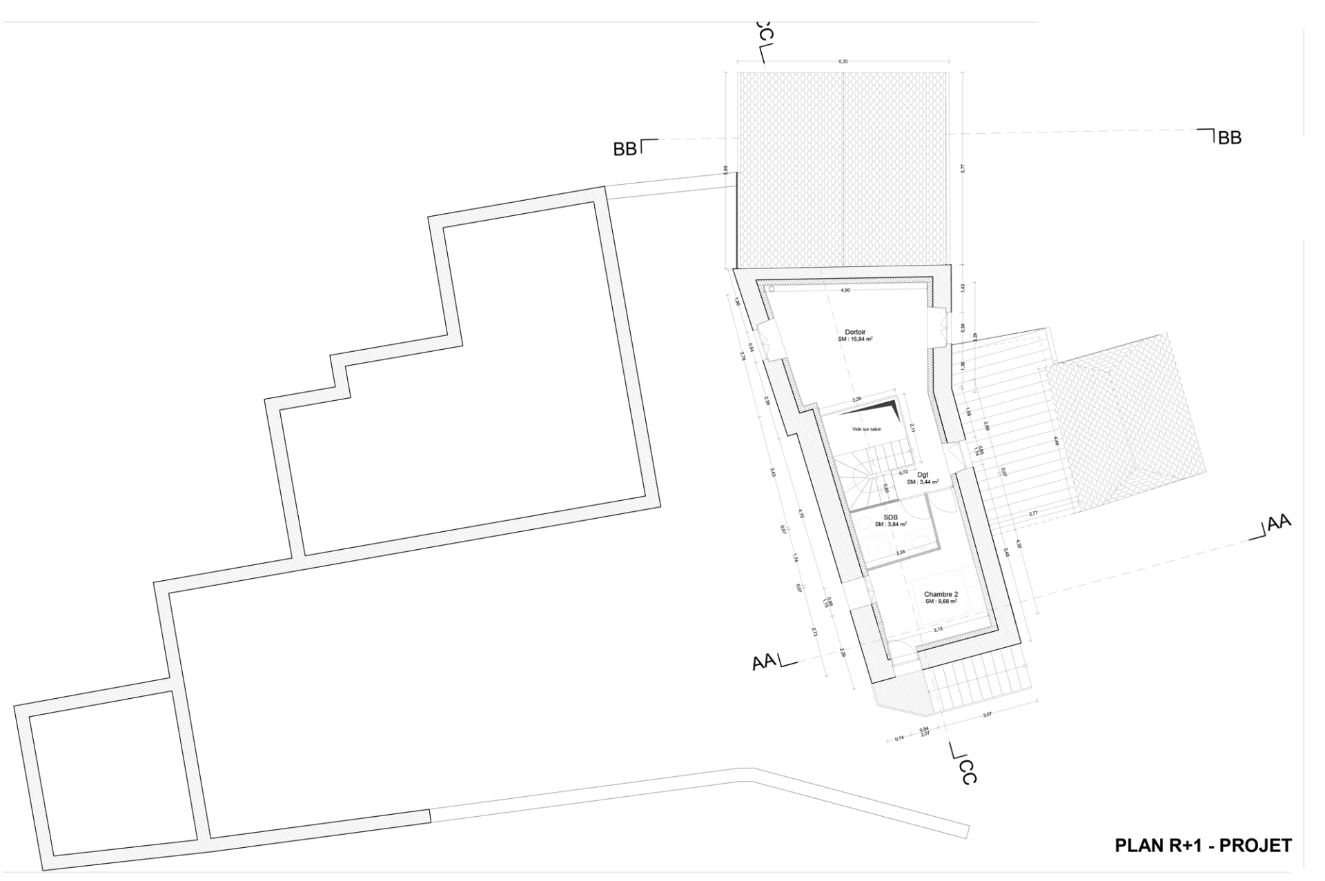
La maison est composée d’un volume simple en long avec 2 niveaux et un appentis en façade Est.
Sa toiture deux pentes est actuellement divisée en 2 toitures distinctes, de hauteur et matériaux différents.
La toiture sera refaite pour aligner les hauteurs et harmoniser le volume. L’appentis en façade Est sera déposé et reconstruit pour créer un espace de stationnement. Les ouvertures du bâtiment seront conservées, seule une menuiserie bois sur mesure sera posée.
En façade Nord, une large ouverture sera créée au rez-de-chaussée afin d’ouvrir la pièce de vie sur le jardin et d’apporter une luminosité supplémentaire aux ouvertures existantes, parfois trop petites. Le volume bas accueille le salon/salle à manger/la cuisine, un WC et la chambre parentale. Le volume haut accueille une chambre et un dortoir.
Le projet, comme les avoisinants, est ancré dans son époque, sur une base d’architecturale traditionnelle, caractérisé par ses volumes simples et ses petites ouvertures.
Architecte : Hugues Tournier - Mission : mission complète - Surface : 68 m²












