
Maison individuelle à Mazères (09)
L’ancienne ferme Ariégeoise va devenir une maison individuelle de caractère, qui s’implante au cœur des terrains agricoles à l’entrée du village de Mazères.
Description
Le terrain est très peu arboré et la maison trône par sa massivité.
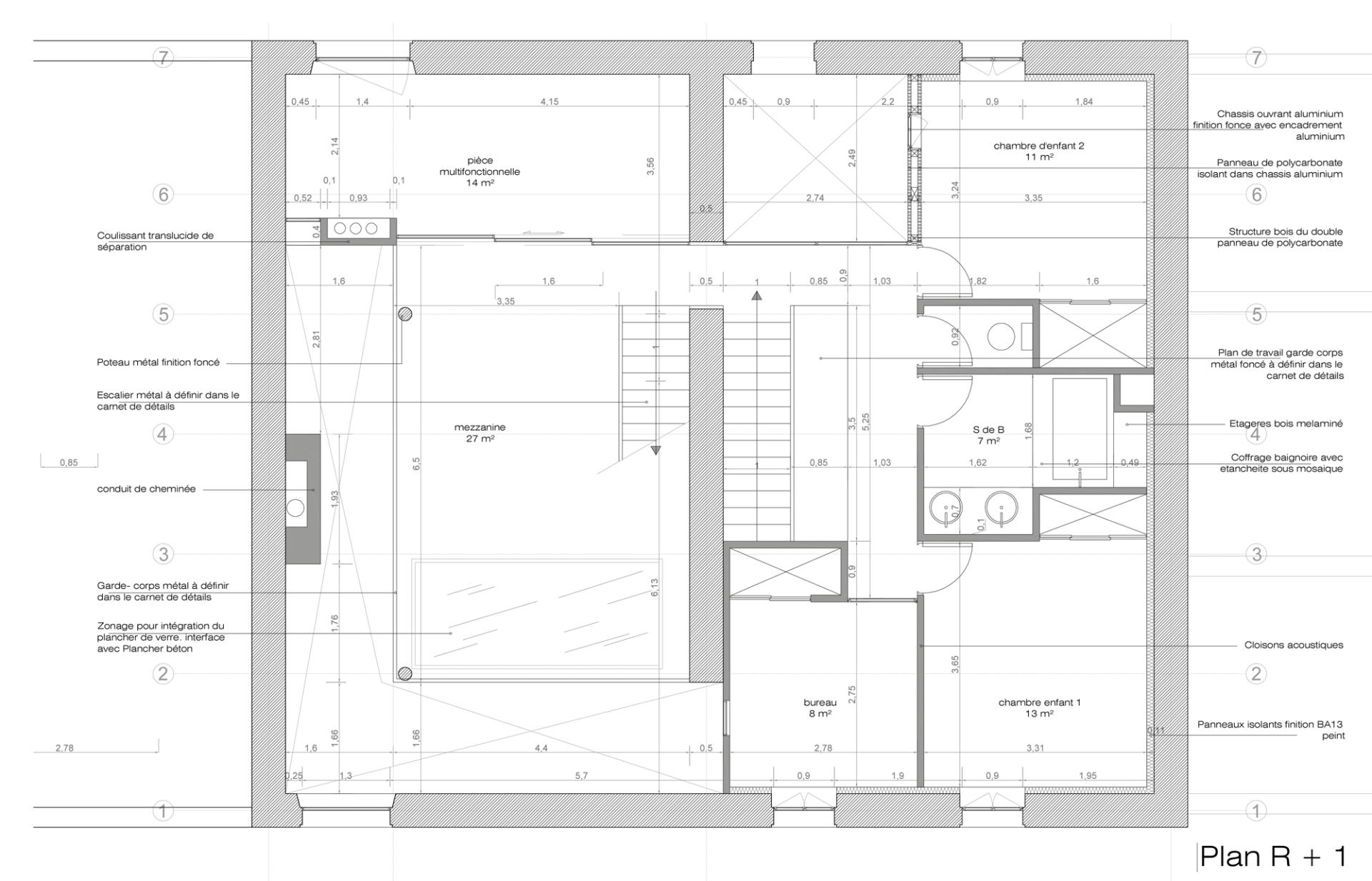
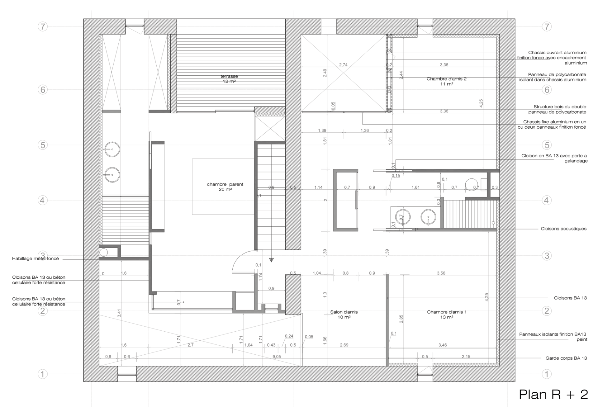
Sur un plan carré originel de 12x12 m, la grange traditionnelle a connu quelques extensions au cours des vingt dernières années.
Sur trois niveaux, totalisant 350 m² utiles, la réhabilitation en habitation a permis d’accueillir une famille nombreuse en devenir. La maison a été vidée et une nouvelle organisation plus contemporaine a permis de créer une diversité d’espace et de parcours.
Des jeux de volumes de double et triple hauteurs ont fait entrer la lumière dans l’ensemble de l’habitation.
Les aménagements nouveaux adaptés au nouveau style de vie de ces habitants sont de caractère simple et minimaliste. Le métal brut sombre et les grands aplats blancs créent un contraste fort avec les murs chaleureux de brique et de galet.
Architecte : Hugues Tournier - Mission : mission complète - Surface : 350 m²















