
Maison et logements à Figeac (46)
Le projet se compose d’une maison individuelle et de deux bâtiments qui regroupent des logements dits « intermédiaires ».
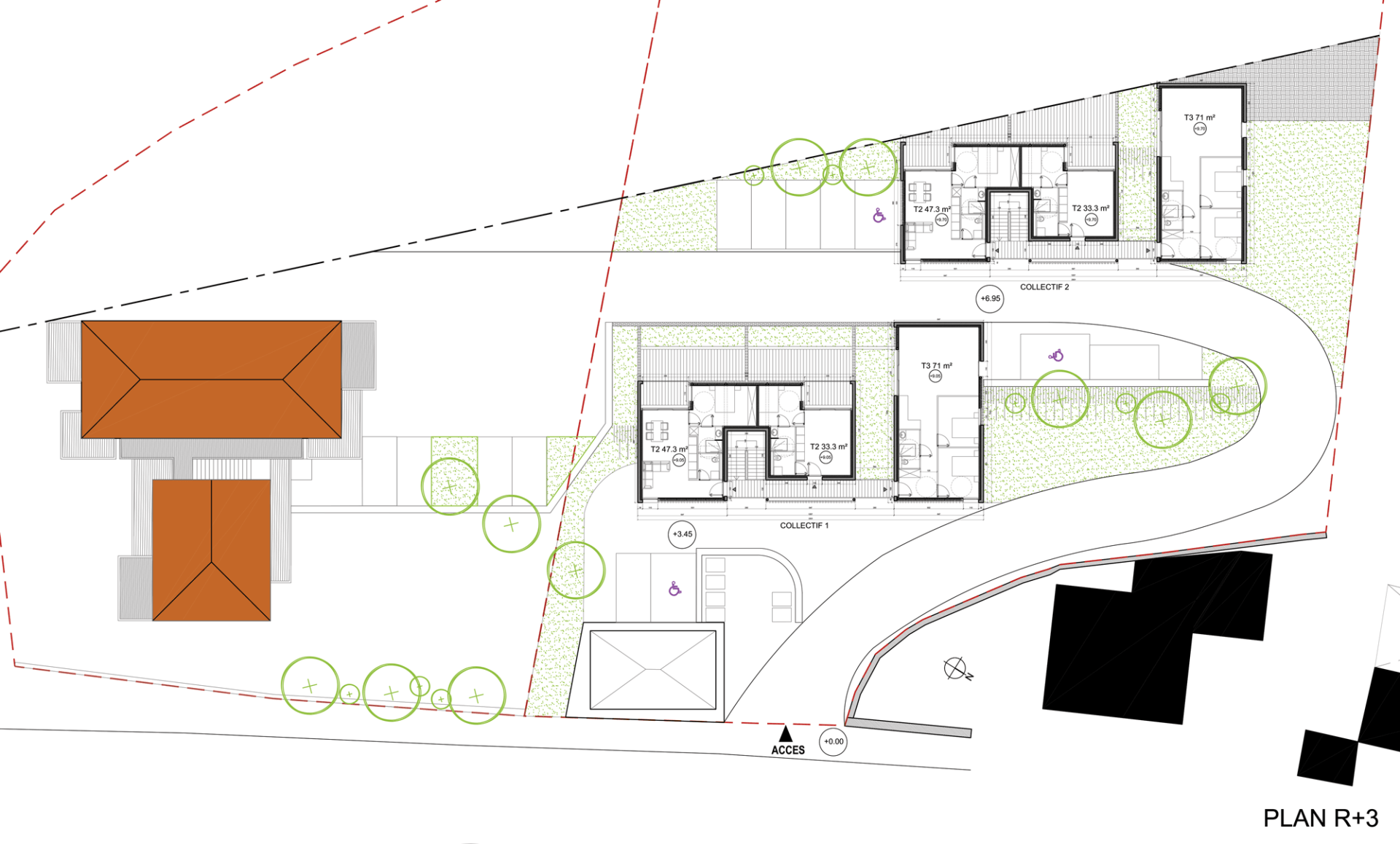
Description
A l’entrée du site, une maison est installée le long de la parcelle.
En entrée de ville, les maisons existantes sur l’Avenue de Toulouse sont implantées pour la plupart en limite de voirie. Afin de conserver cette écriture de la voie, nous avons pris le parti d’implanter cette maison en limite parcellaire.
Sur 2 niveaux, la maison se compose d’un socle en béton, habillé par le mur de clôture en pierres sèches, qui glisse sous de débord du premier niveau. A l’intérieur, nous entendons apporter toutes les qualités d’une maison individuelle dans chaque cellule de logements, par une entrée extérieure pour chaque appartement, associée à de larges terrasses ou loggias et de profiter de la vue sur Figeac et de la lumière du Sud et de l’Ouest. Les 2 ensembles seront donc composés en L.
Architectes : Hugues Tournier et Denis Cabiron - Mission : permis de construire - Surface : 707 m²











