
Maison individuelle à Arvieu (12)
Construction d’une maison secondaire à proximité du lac de Pareloup.L’ensemble est en structure métal ou bois et bardage métal ou bois.
Description
Le terrain est fortement en pente d’Ouest en Est. La maison est implantée dans l’angle du terrain en triangle et s’adapte aux limites parcellaires.
L’angle crée à l’étage un accès direct terrasse et un cadrage d’entrée sur le lac. La grande terrasse cadrera le lac et se protègera au maximum du vis-à-vis terrasse de la maison voisine.
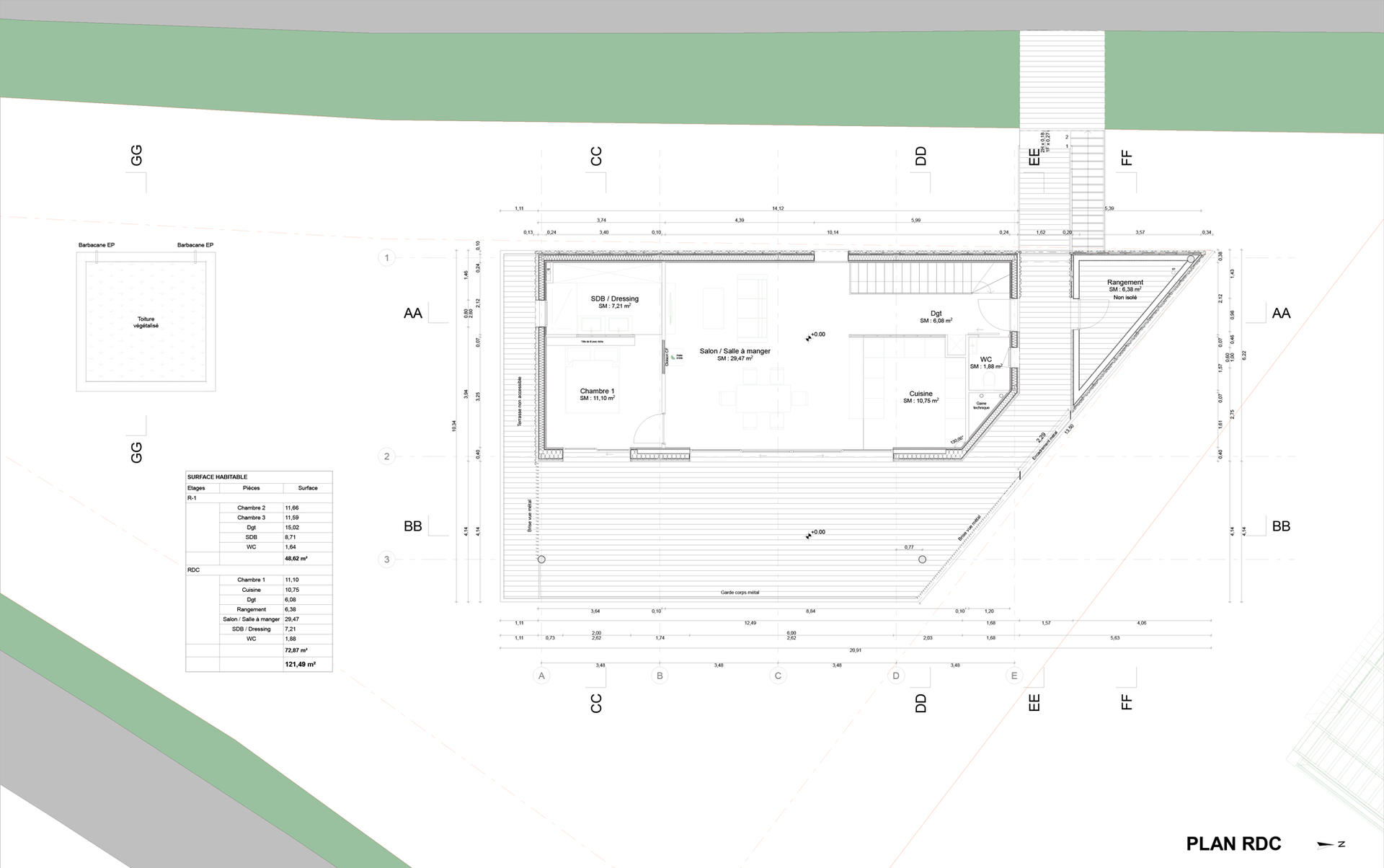
Un local de rangement non chauffé occupe l’angle et fait face à l’entrée de la maison. Au Nord, on retrouve la cuisine puis le salon/salle à manger en descendant vers le Sud et, enfin, la chambre parentale en façade Sud.
L’étage flotte et déborde au dessus du rez-de-jardin, créant ainsi l’abri voiture au Sud.
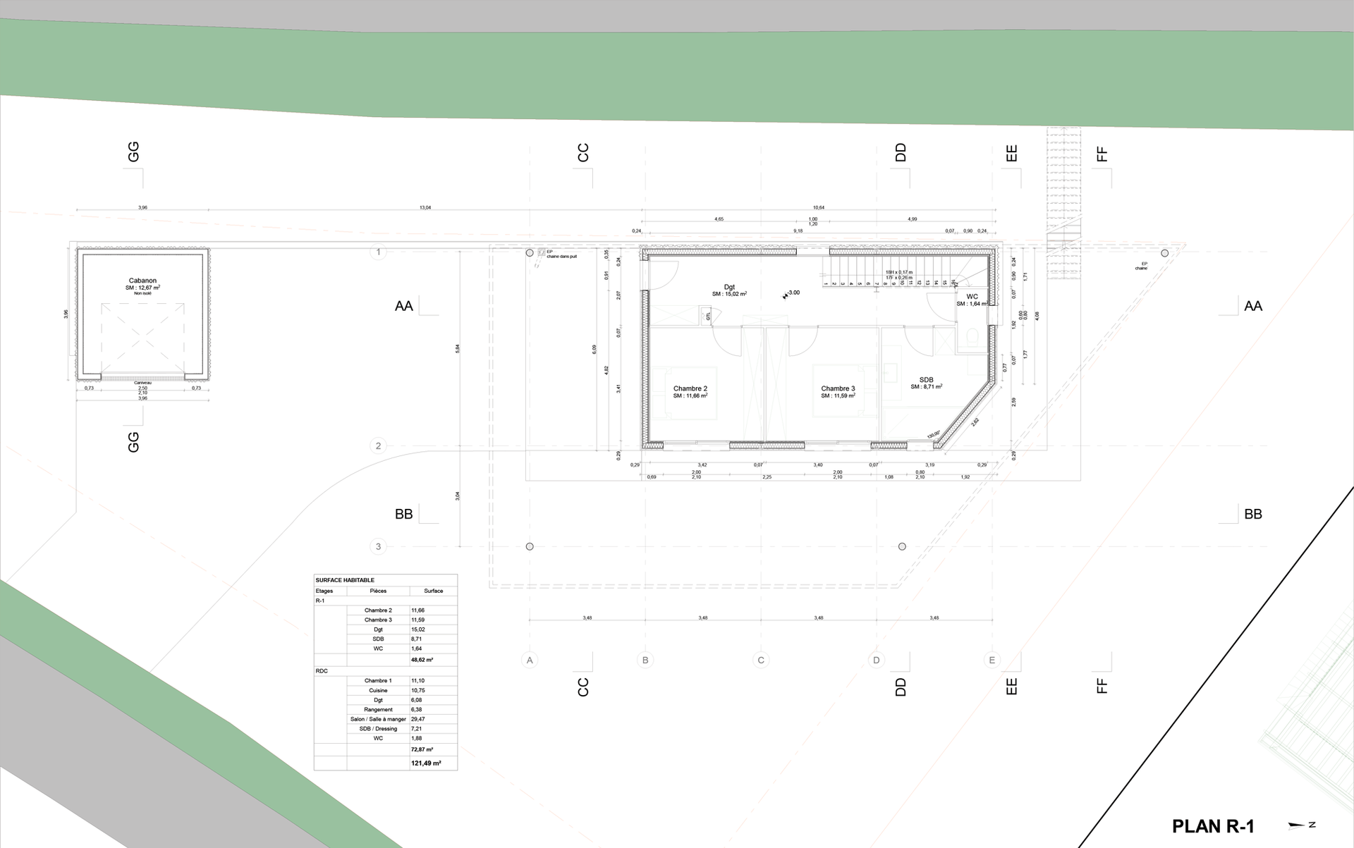
En bas, on trouve deux chambres et une grande salle de bain/buanderie.
Pour l’ensemble, si nous avons une claire voie métal, nous pensons à un pliage en 7, assez simple.
Architecte : Hugues Tournier - Mission : mission complète - Surface : 124 m²























