
Maison individuelle à La Loubière (12)
Le projet est une construction neuve sur un terrain sans construction existante,s’intégrant au paysage et aux maisons alentour.
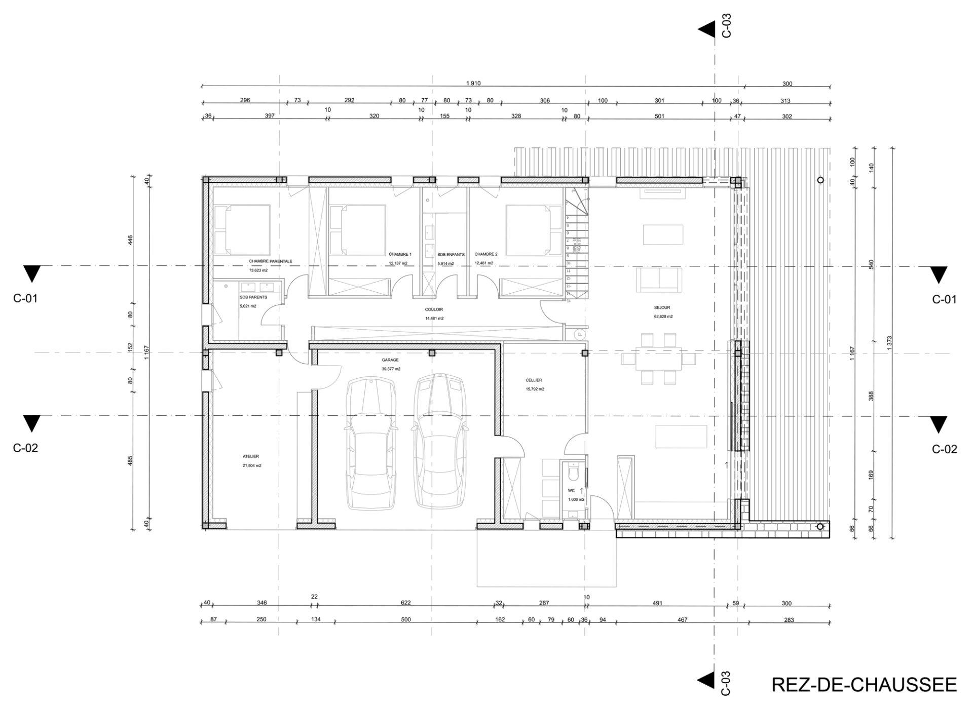
Description
La maison individuelle sera composée d’un volume simple, surmonté d’une toiture à double pente.
Les ouvertures sont essentiellement disposées sur les façades Sud et Ouest de la maison, afin de créer une réelle efficacité thermique.
La maison se protègera du vis-à-vis : à l’Ouest, les espaces qui donnent sur la maison voisine seront le garage et l’atelier, qui n’ont aucune visibilité directe sur le voisinage. Le mur qui longe l’entrée permet de protéger la terrasse des regards. L’habitation est principalement orientée vers le Sud-Ouest, qui ne sera pas construit et également protégé du vis-à-vis.
Le projet est ancré dans son époque, sur une base d’architecturale contemporaine. La pierre de pays habillera les murs de façade. L’enduit de la maison sera de teinte gris clair, la toiture sera réalisée en ardoise, les menuiseries extérieures seront de teinte alu anthracite et les éléments métalliques seront de teinte gris sombre.
Architecte : Hugues Tournier - Mission : permis de construire - Surface : 179 m²







