
Maisons individuelles à Grand Vabre (12)
Le projet consiste à implanter 2 maisons et une cabane dans un terrain escarpé en sous-bois,sans impacter la vue ni le paysage originel.
Description
La maison sera implantée dans la pente, avec un vari rapport au sol à la terre, créant un socle habitable, frais, lumineux, contemporain.
De grands volumes percés de patios, reliés par une large galerie à fort usage, s’organiseront en deux niveaux. Un étage avec chambre et espace de jour suivant la course du soleil avec grande terrasse ensoleillée et ombragée et un étage avec espaces enfants ou amis semi-indépendant. Cette éco-construction contemporaine sera environnementale, performante, en mises en œuvre et matériaux innovants mais éprouvés. En limite de terrain, un abri pour véhicules sera aménagé avec soutènement pierre et structure légère.
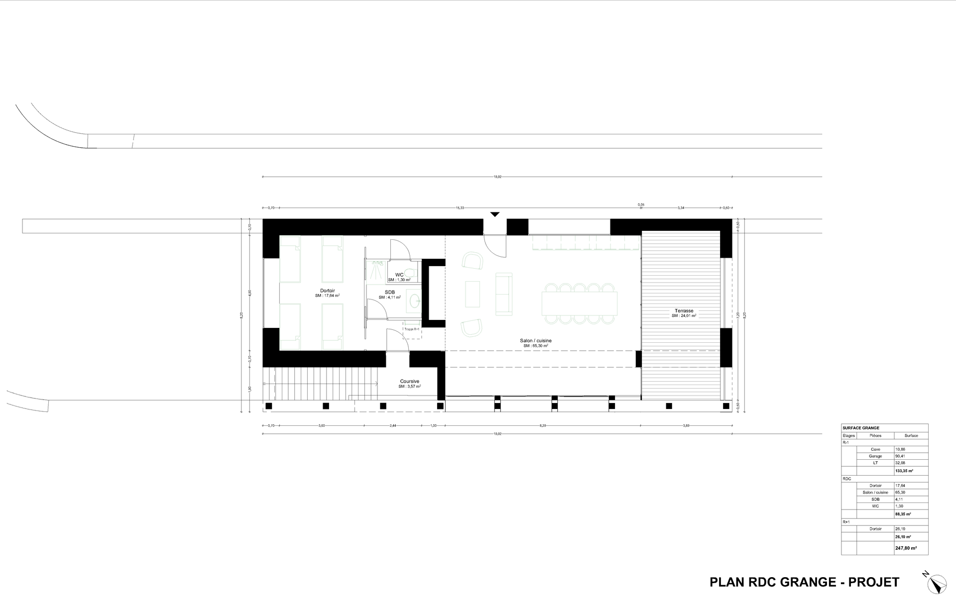
En parallèle de la pente, on encastrerait une grange traditionnelle en pierre et lauze avec charpente massive sur deux niveaux. Un niveau de stationnement et de locaux techniques et un étage cathédrale, confortable mais rustique dans son apparence, fidèle aux constructions de terroir, ancré dans son histoire et sa topographie. Le volume en étage pourra accueillir fête et dortoirs, avec cheminée et grande tablée.
Architecte : Hugues Tournier - Mission : mission d'avant projet - Surface : 248 m² + 162 m²















