
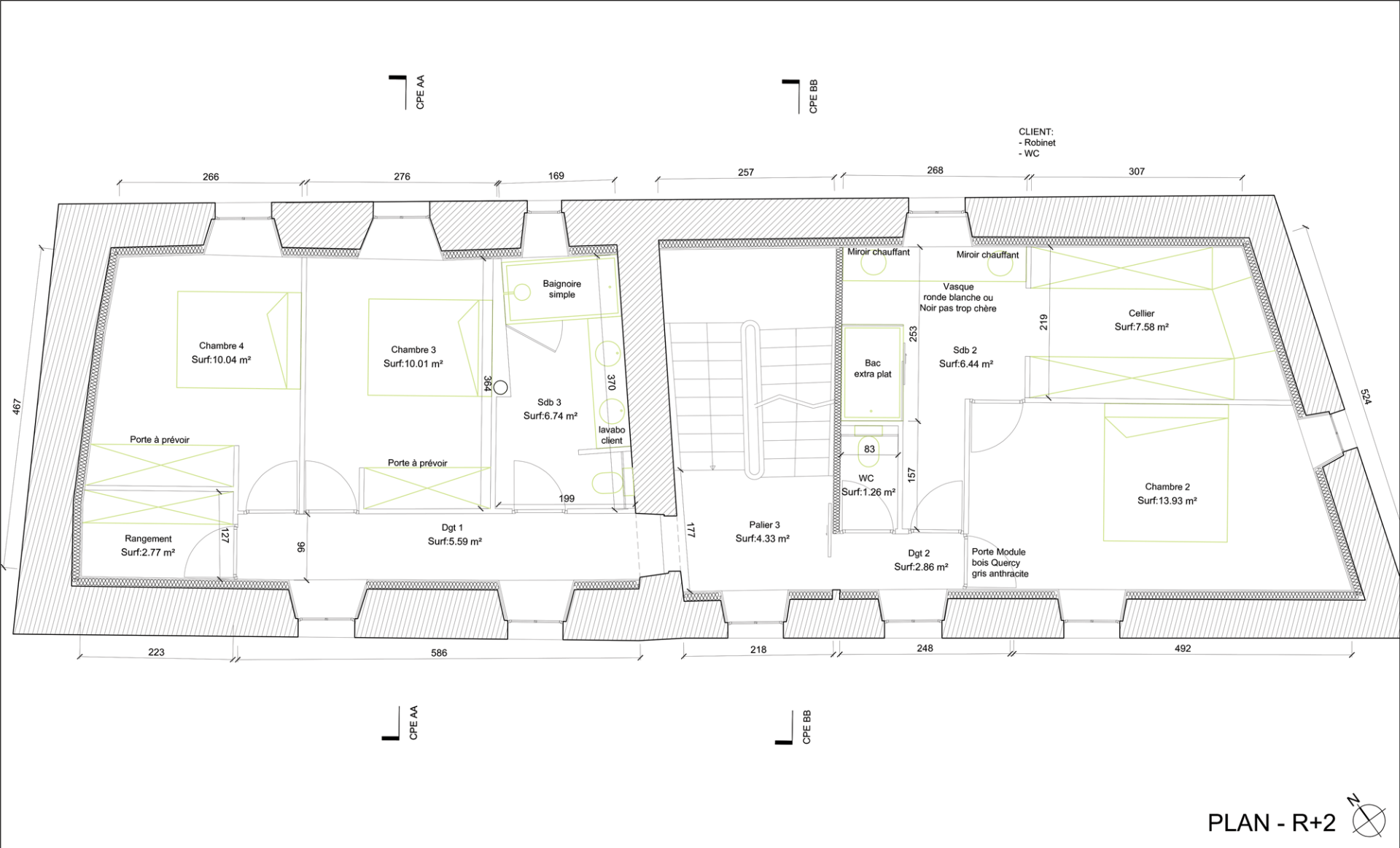
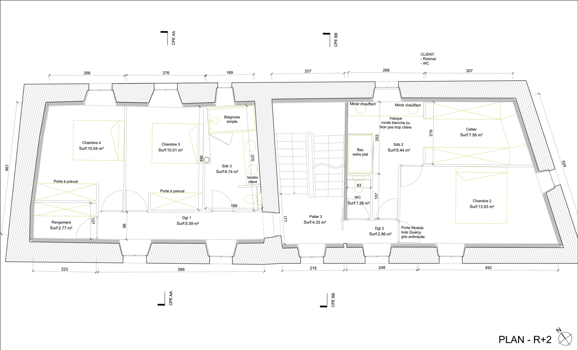
Maison individuelle à Gradels (12)
Cette maison est une construction traditionnelle pérenne dont la réhabilitationconcerne essentiellement l’organisation intérieure de l’habitat.
Description
Ce bâtiment de caractère se développe sur 3 niveaux : rez-de-chaussée, premier étage et deuxième étage. Il évolue autour d’une cour intérieure, desservant un autre bâtiment (non modifié).
Les toitures en pentes sont en lauze, traditionnelle dans la région. Les façades sont en pierres locales apparentes et les menuiseries sont en bois peint.
L’objet de cette réhabilitation est de réorganiser la maison suivant le programme du maître d’ouvrage, de s’adapter à un mode de vie contemporain et de retravailler l’enveloppe énergétique de la bâtisse pour répondre aux standards thermiques réglementaires.
Architectes : Hugues Tournier, Sébastien Souan - Mission : complète - Surface :
310 m²















