
Maison individuelle à Figeac (46)
Le projet consiste en la conception et construction d’une maison d’habitation dans la ville de Figeac.
Description
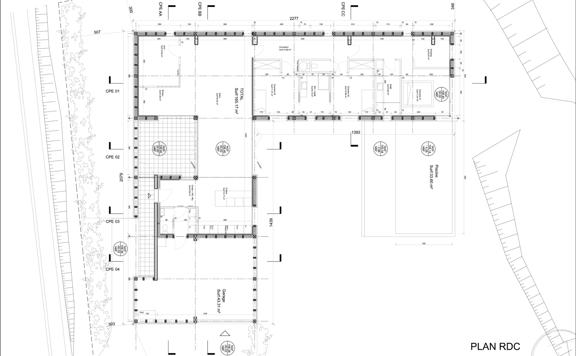
La maison est basée sur une composition de volume simple, en L, et de plain-pied, décomposant les différents éléments de programme dans le terrain.
Elle se décompose en deux ailes. L’aile liée à l’espace « jour » est traversante et implantée à proximité de la voie, permettant une intimité du terrain. Cette implantation permet de gagner en apports de lumière. L’aile de « nuit » est sur pilotis et récupère l’ensoleillement du Sud. Le garage, dans la continuité de l’espace jour, protège la terrasse des vues et crée le glissement vers l’entrée. Le volume des espaces de réception s’ouvre largement sur le terrain et sur un patio apportant la lumière de l’Ouest. Les chambres donnent directement sur les espaces extérieurs et ouvrent visuellement sur le cœur du terrain. La piscine, en contrebas du terrain, trouve une terrasse abritée sous les chambres. Cette maison est conçue de façon à pouvoir profiter de l’extérieur tout au long de l’année.
Architecte : Hugues Tournier - Mission : mission complète - Surface :
165 m²











