
Maison bois individuelle en Seine-et-Marne (77)
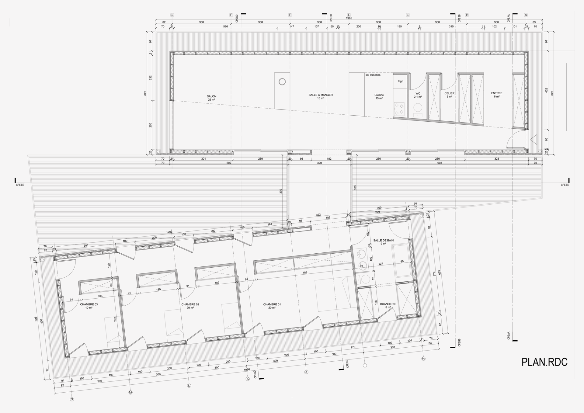
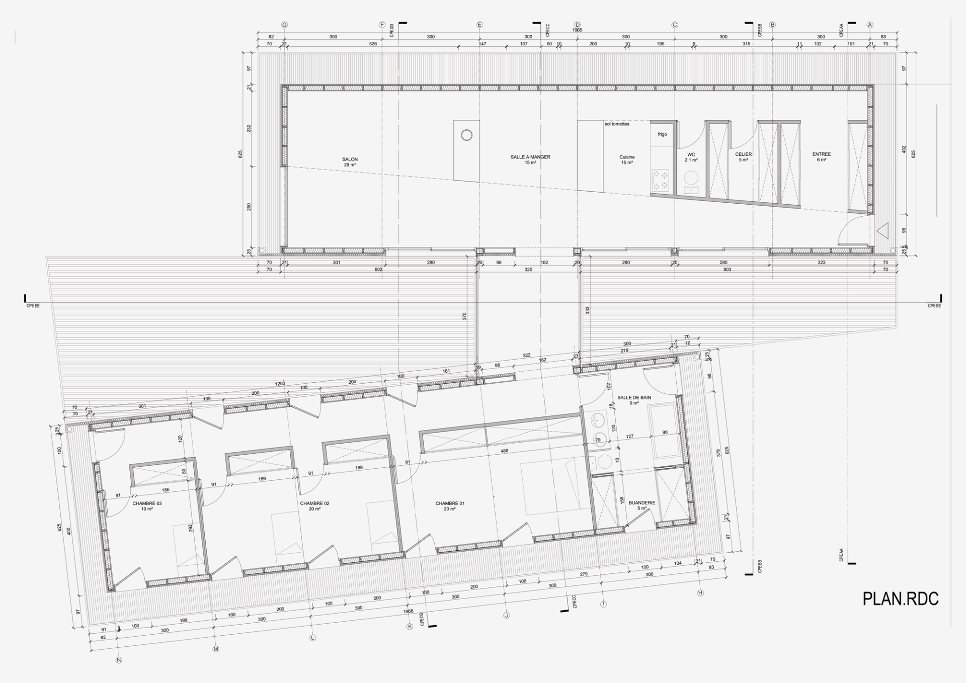
Assise sur une dalle en béton, la maison bois de 210 m² a une écriture architecturale simple et contemporaine, s’insérant discrètement dans le paysage.
Description
Le terrain est légèrement en pente et la maison est posée sur pilotis.
Les trames de 3 m sur 5 m en épicéa qui composent sa structure, simplifient l’habitat et lui donnent une flexibilité future.
Ce logement familial à ossature bois est divisé en deux parties de dimensions égales et complémentaires. Côte à côte et en faible décalage, l’aile jour et l’aile nuit se regardent pour refléter dans leurs vitrages respectifs le bardage à claire voie en Douglas massif. Les terrasses, au cœur de la maison captent la lumière, tout en gardant un peu d’ombre pour les fenêtres des chambres.
A l’intérieur, l’accent a été mis sur l’isolation. Les matériaux ont été choisis afin de n’avoir aucun pont thermique.
La toiture et la dalle bénéficient toutes deux d’une double isolation.
Architectes :
Hugues Tournier et Julien Berujeau - Mission : mission complète - Surface :
210 m²







