
Maison des habitants de Magrin à Calmont (12)
Le village de Magrin propose la rénovation de la maison de Maviel comme futur lieu de rencontres et d’échanges associatifs.
Description
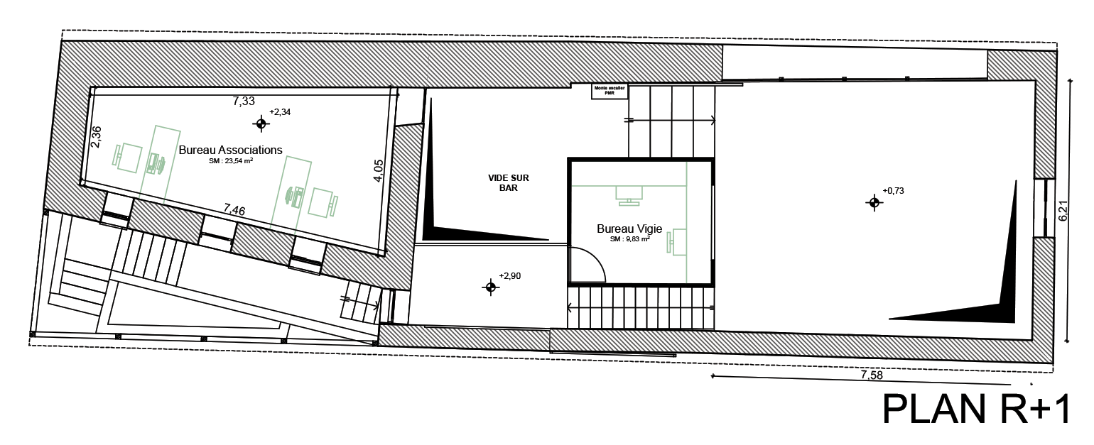
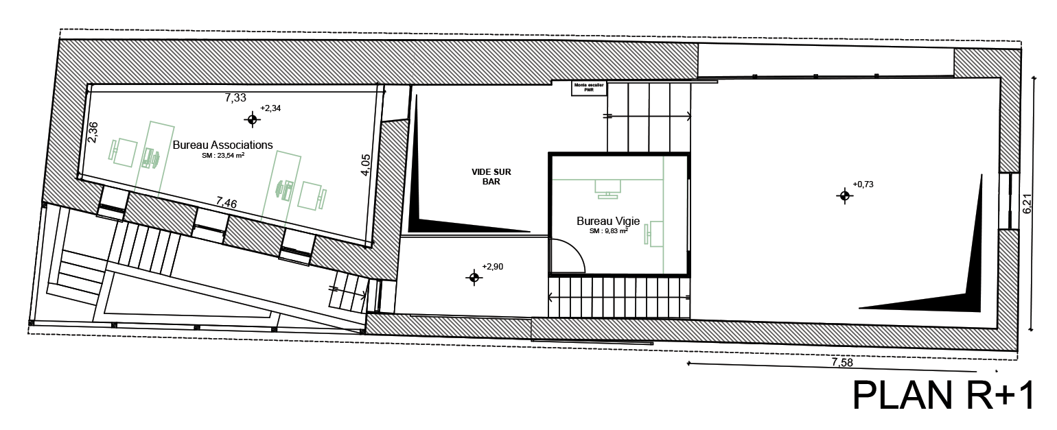
La maison de Maviel est actuellement la greffe entre une grange et une maison.
Pour lui donner l’identité d’un équipement public de caractère, nous allons redéfinir sa volumétrie générale.
Dans sa hauteur à l’Ouest, l’étage supérieur sera supprimé afin de reconstruire une toiture unique et d’unifier les deux bâtiments. Nous allons protéger l’entrée de l’ancienne partie habitation et homogénéiser la façade Sud sans gros travaux lourds et coûteux. Une grande ouverture au Sud a été doublée par sa jumelle au Nord ; ainsi, l’espace hall d’accueil peut être traversé pour donner à voir le square. Les enveloppes extérieures seront revalorisées par des matériaux simples, locaux, et traditionnels. Pour le bar et bureau-vigie, associer les habitants à la conception et réalisation permet une appropriation du projet et génère un respect et une pérennité des lieux.
Architecte :
Hugues Tournier - Mission :
étude de faisabilité - Surface :
197 m²











