
Collectif Sainte Famille à Rodez (12)
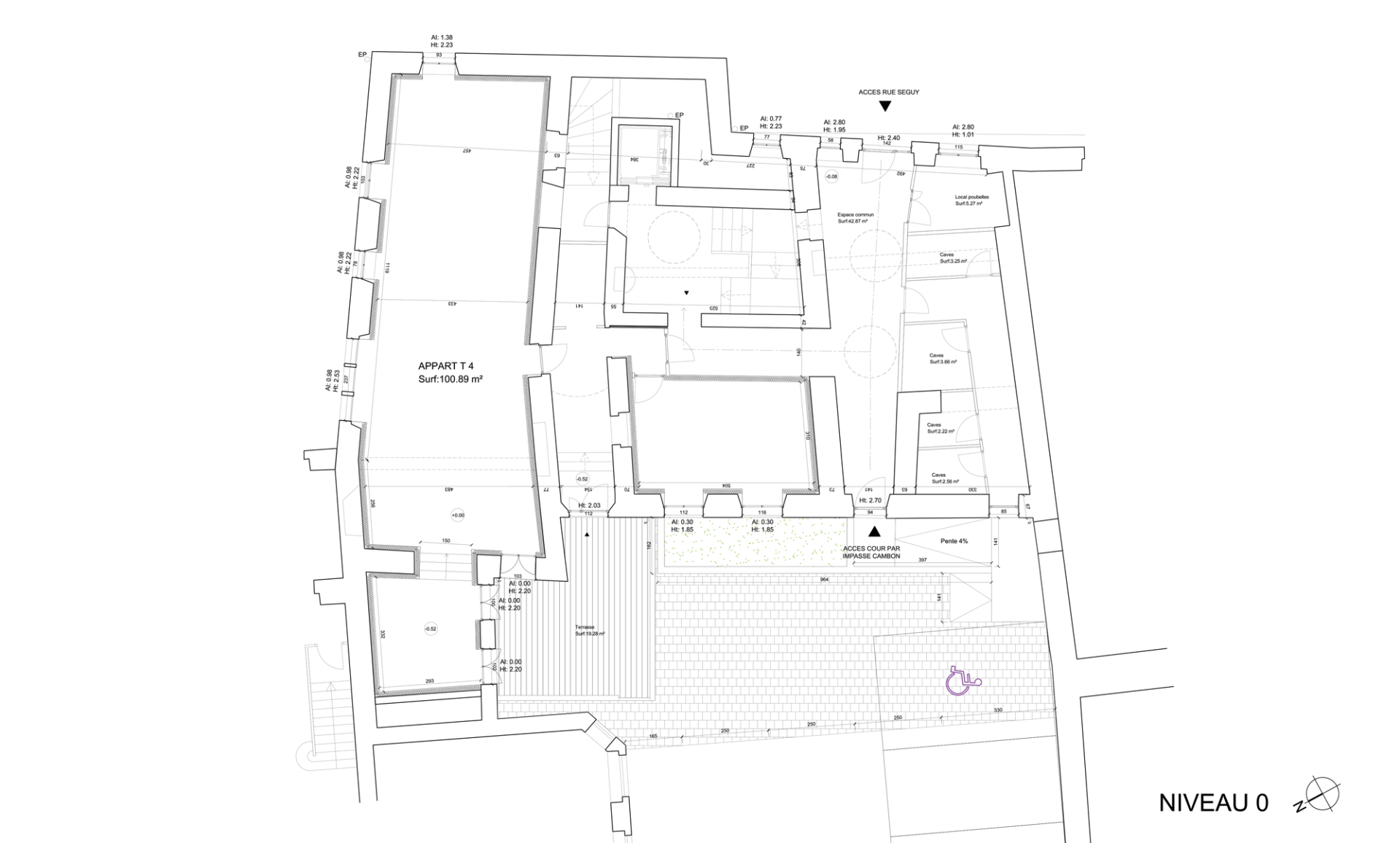
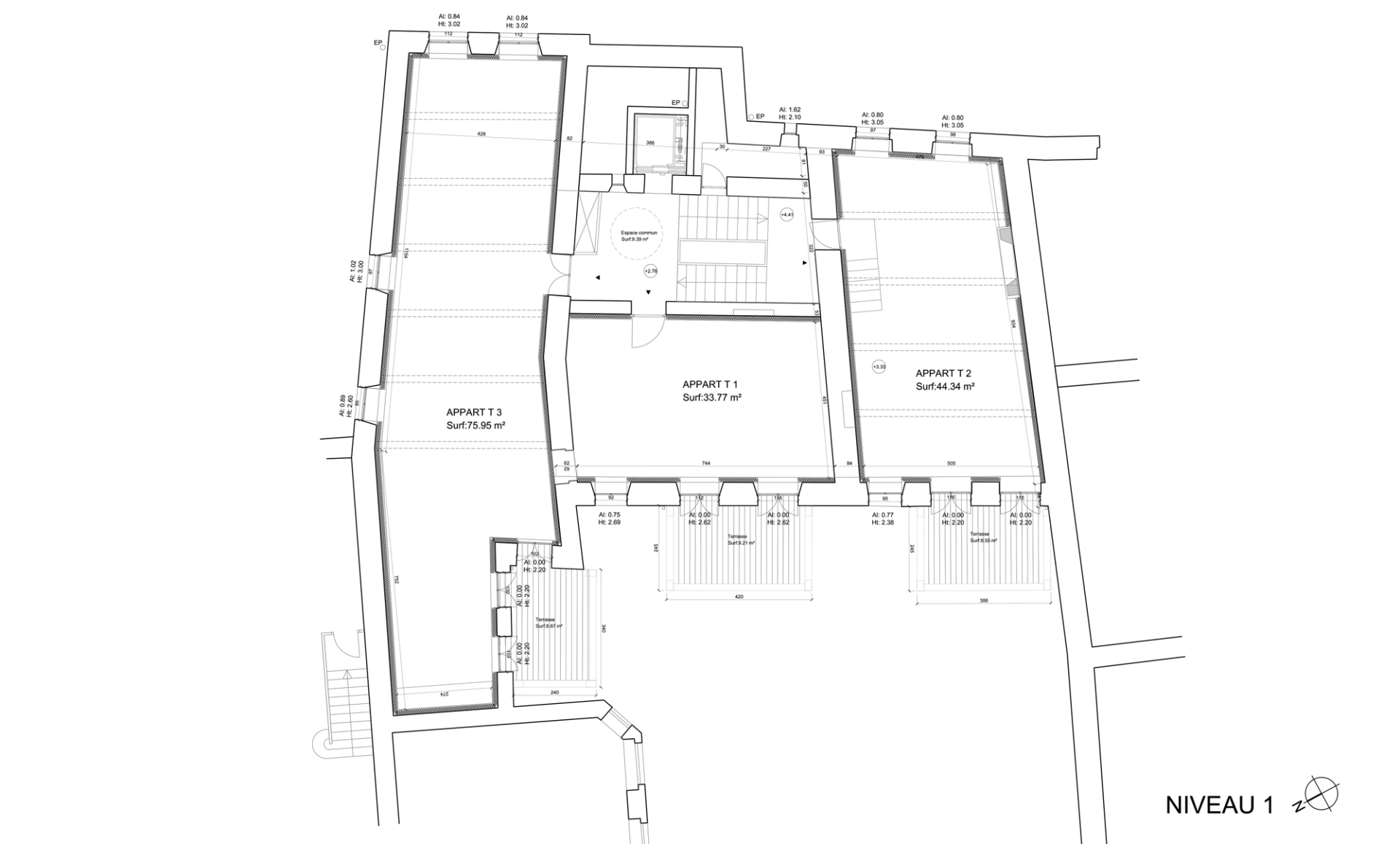
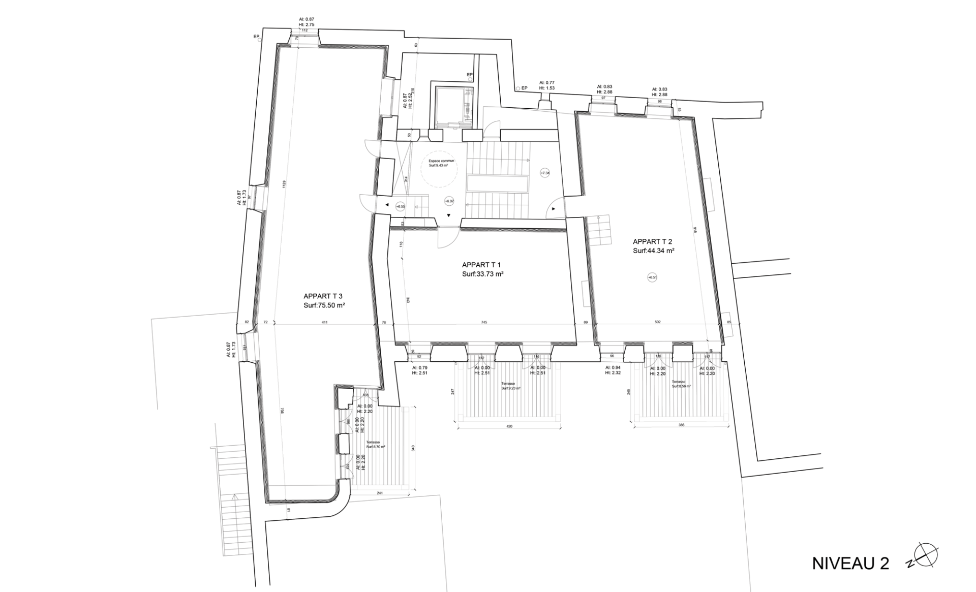
Le projet consiste en la création de plusieurs types d’appartements (T1, T2, T3 et T4) dont les plus grands seront traversants.
Description
Le terrain est composé de plusieurs corps bâtis sur la rue Séguy et d’une cour privée donnant sur la rue Cambon. Cette parcelle est issue de la division récente de l’ensemble de la Sainte Famille en plusieurs lots. Cet ensemble datant approximativement de 1900, fut le foyer d’hébergement de la Sainte Famille, créé par les sœurs d’Emile de Rodat.
Sur la façade, rue Séguy, on retrouve une série d’éléments patrimoniaux intéressants, tels que des encorbellement, jambages et linteaux de menuiseries ou chainages d’angle en pierre, persiennes, ainsi qu’une porte d’entrée en bois. Côté cour, la façade est plus lisse et sans pierres.
Des terrasses en bois ont été ajoutées en façade afin que chaque logement puisse bénéficier d’un espace extérieur.
Architectes : Hugues Tournier et Denis Cabiron - Mission : permis de construire - Surface : 870 m²















