
Collectif "Jardins d'Olt" à Capdenac (46)
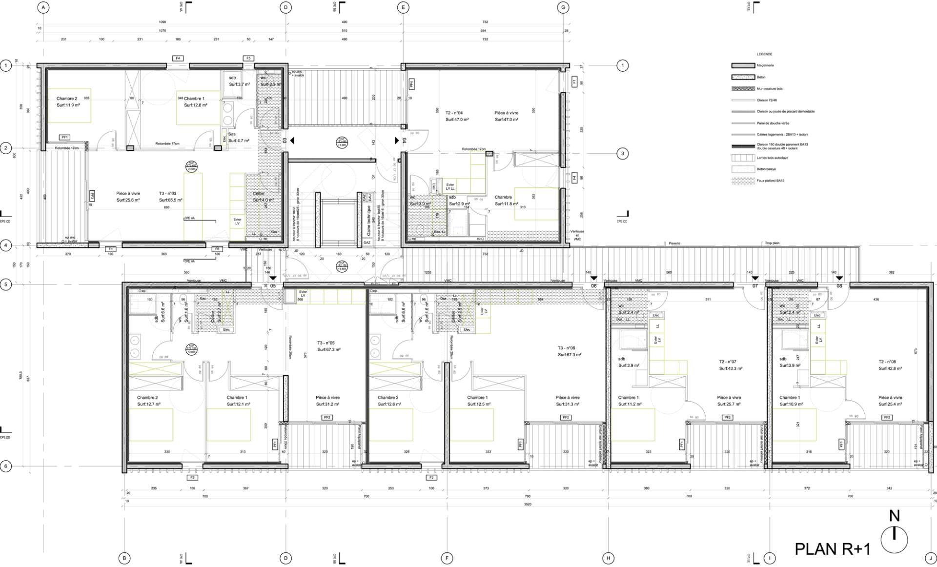
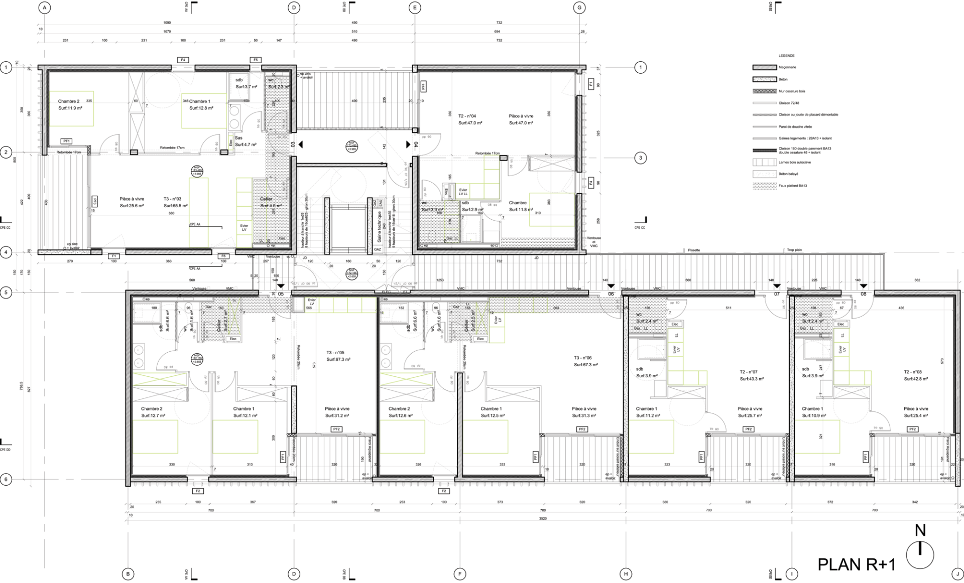
Le projet consiste à créer un immeuble de 20 logements sur trois volumes qui s’assemblent autour d’une circulation verticale.
Description
Le volume Sud, sur quatre niveaux, se compose d’un socle de stationnements, contenu par des murs en pierres sèches qui glissent sous le débord du premier niveau, volume contemporain à l’écriture simple. Les trois niveaux supérieurs accueillent quatre logements par niveaux, desservis par une coursive Nord et s’ouvrent largement en façade Sud. Les deux volumes Nord à l’Ouest et l’Est de la circulation verticale sont composés de cinq niveaux de logements. Le palier intermédiaire dessert un appartement à l’Ouest et un à l’Est. Toutes les qualités d’une maison individuelle se retrouvent dans chaque cellule de logement, soit une entrée extérieure pour chaque appartement, associée à de larges terrasses ou loggias. Afin de profiter de la vue sur le Sud de Capdenac et de bénéficier de la lumière du Sud et de l’Ouest, les trois volumes se décalent en volumétrie et sont reliés par des coursives extérieures au Nord, qui permettent également l’accès aux appartements par un ascenseur.
Architectes : Hugues Tournier et Denis Cabiron - Mission : permis de construire - Surface : 1 427 m²















