
Création de locaux commerciaux (12)
Le projet consiste en la création de locaux à destination commerciale pour l’un de nos clients.
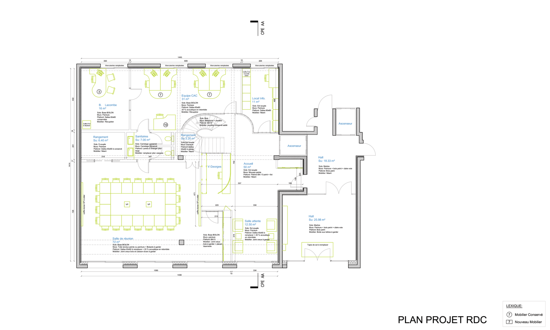
Description
La Tour Raynalde, située sur le tour de ville de Rodez, a été réhabilitée pour passer de locaux médicaux à des locaux commerciaux.
Le bâtiment comprend un rez-de-chaussée où se situe le hall d’accueil, et deux étages qui hébergent les bureaux.
Les matériaux utilisés ont été choisis afin de respecter le charme de l’ancien de ce bâtiment.
Nous avons choisi d’y intégrer des touches de modernité tout en conservant son authenticité.
Architecte : Hugues Tournier - Mission : mission complète - Surface : 1 036 m²















