
Construction de 3 immeubles à Figeac (46)
L’objet du projet est la densification de cette parcelle dans la ville de Figeac, pour répondre à un besoin urgent de logement.
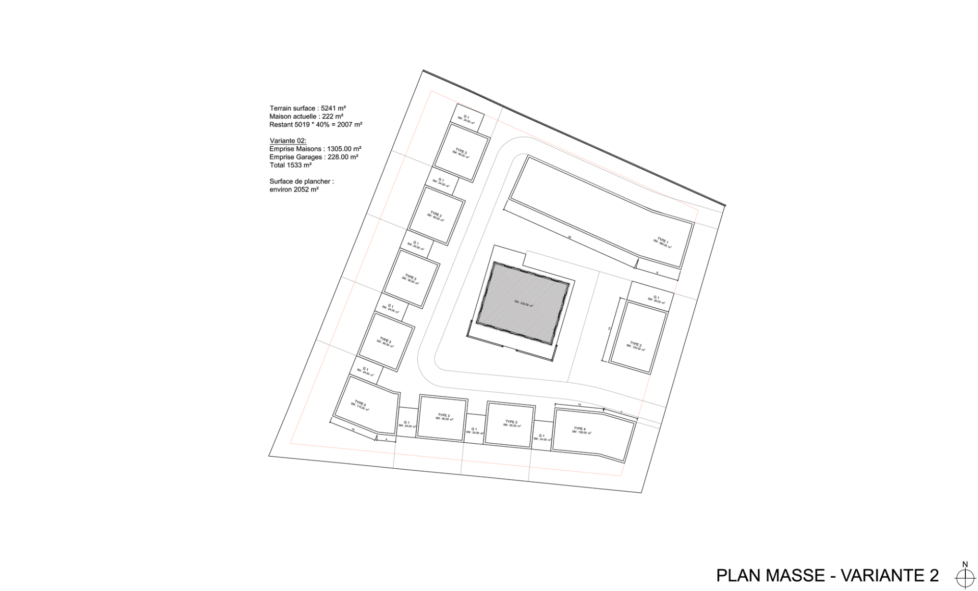
Description
Etude de faisabilité pour la construction de 3 immeubles de logement et la réhabilitation d’une villa de maitre.
En R+3, ces collectifs intermédiaires seront à toiture tuile et parés de briques, pour une insertion architecturale optimale. Des séquences de toiture végétalisée viennent décomposer le linéaire des volumes.
Architecte : Hugues Tournier - Mission : mission complète - Surface : 2 120 m²















