
Extension de maison individuelle à Laguiole (12)
Sur la commune de Laguiole, le projet consiste à récupérer la surface de la terrasseet d’en faire une extension pour la maison.
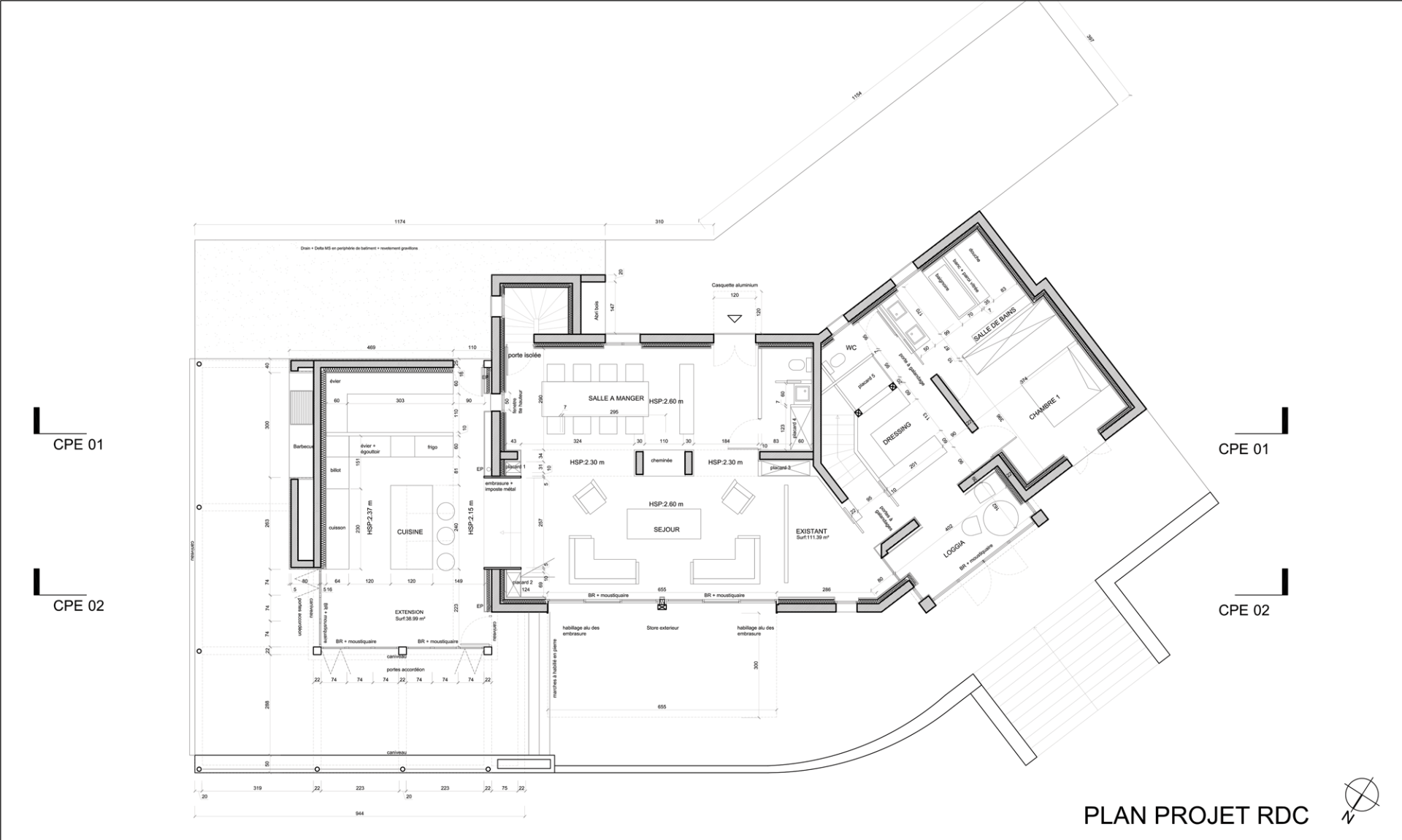
Description
Le terrain, en légère pente vers l’Ouest, est composé d’une maison et d’une terrasse sur garage au Nord. La maison est implantée au centre de la parcelle.
L’habitation existante se compose en L en toiture en lauze à multi-pente. Une petite tourelle marque l’angle. Elle se décompose sur trois niveaux : un sous-sol, un rez-de-jardin et un étage sous-comble. Le Rez-de-chaussée est positionné en partie haute du terrain, avec la façade principale au Nord-Ouest. Le premier étage en sous pente.
Au Nord de la maison, nous retrouvons le garage enterré, servant de terrasse au niveau du rez-de-chaussée.
Toutes les façades seront enduites en gris clair. Le garage traité en sous-bassement sera en enduit foncé.
L’extension de traitement contemporain sera en aluminium sombre, en verre et en pierre de pays.
Les menuiseries seront intégralement remplacées. Elles seront en aluminium sombre par cohérence avec l’extension.
Architecte : Hugues Tournier - Mission : mission complète - Surface : 217 m²











