
2 Maisons individuelles à Souyri (12)
Ce projet consiste en la construction de deux maisons sur un même terrain. Situées à Souyri, ces deux habitations de taille semblable offrent deux styles différents.
Description
Il faut définir une façade sur rue et une façade intime sur jardin.
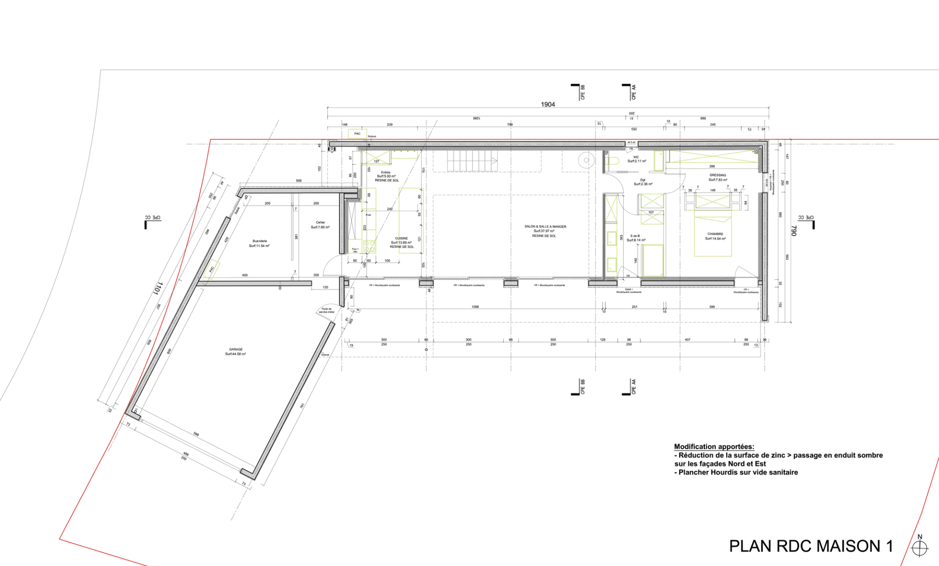
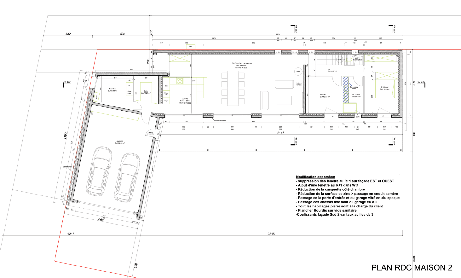
Le premier volume bâti est parallèle à la rue d’accès. Il regroupe les zones les plus publiques de la maison, l’entrée et le garage. Ici, les portes de garage sont placées en pignon latéral pour diminuer leur impact. La voie d’accès se retrouve en latéral, libérant un espace végétal devant la maison. Ce volume en barrière physique vient créer l’intimité du cœur du jardin. Le deuxième volume connaît une transition, du plus publique (entrée) au plus privé (chambres). Il s’implante en parallèle de la limite Nord pour s’ouvrir largement sur le jardin au Sud., afin de profiter des apports solaires et des vues sans vis-à-vis.
La composition générale de la maison répond à une organisation logique de vie quotidienne : Garage - Cellier - Cuisine - Salle à manger - Salon - Chambres.
Architecte : Hugues Tournier - Mission : mission complète - Surfaces : 143 m² et 159 m²













