
Création d'extension d'un cabinet Vétérinaire (12)
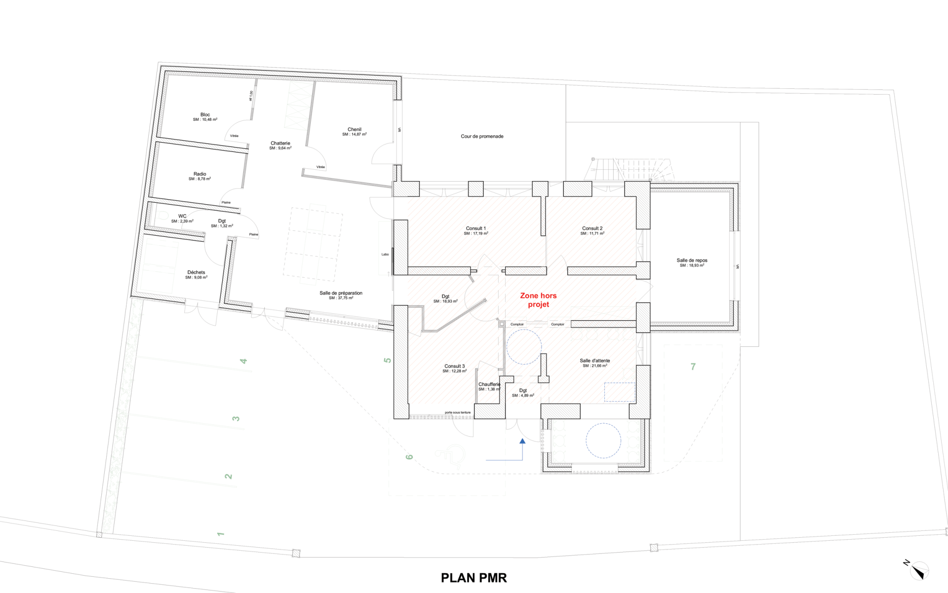
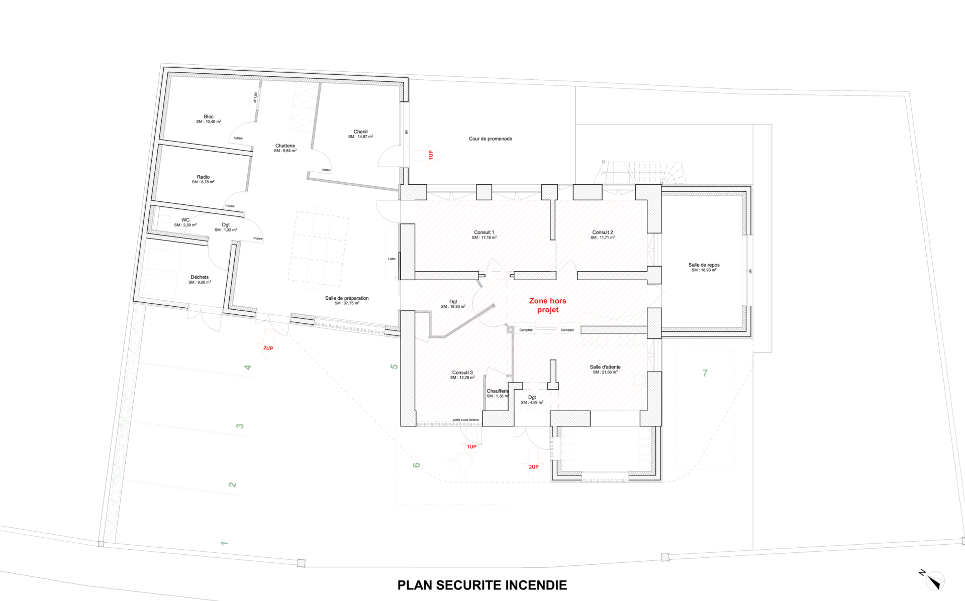
Le projet vise à créer une extension autour du cabinet vétérinaire existant,afin de pouvoir accueillir plus d’animaux en soins et de leur offrir plus d’espace.
Description
Au rez-de-chaussée, en façade Sud-Ouest, l’extension attenante à la salle d’attente permettra une plus grande capacité d’accueil du public.
L’extension côté Sud accueillera une salle de repos.
L’extension au Nord comprendra une salle de préparation, un chenil, une chatterie, un bloc, une salle de radio et un dégagement donnant sur les WC et la salle des déchets.
Une terrasse engravillonnée en R+1 reliera toutes les extensions ensemble, et offrira un masque solaire au niveau de l’entrée au Nord-Ouest. Une autre terrasse bois, au Sud, sera accessible pour le personnel, grâce à un escalier extérieur en façade Est.
Architecte : Hugues Tournier - Mission : permis de construire - Surface : 203 m² d'extension











